
| Investigación Documental | https://doi.org/10.21041/ra.v10i1.419 |
El incendio y colapso del edificio Wilton Paes de Almeida en São Paulo, Brasil: lecciones aprendidas
Fire and collapse of the Wilton Paes de Almeida building in São Paulo, Brazil. Lessons learned
Colapso do Edifício Wilton Paes de Almeida - SP: lições aprendidas
P.
Helene1
*
, J. Pacheco2
, D. Couto3
1 Professor Titular da EPUSP. PhD Engenharia, São Paulo, Brasil..
2 PhD Engenharia, São Paulo, Brasil..
3 Universidade Estadual de Campinas (UNICAMP). PhD Engenharia, São Paulo, Brasil..
* Autor de Contato: paulo.helene@concretophd.com.br
Recepción: 07 de junio de 2019.
Aceptación: 22 de noviembre de 2019.
Publicación: 30 de diciembre de 2019.
| Citar como: Helene, P., Pacheco, J., Couto, D. (2020), "El incendio y colapso del edificio Wilton Paes de Almeida en São Paulo, Brasil: lecciones aprendidas", Revista ALCONPAT, 10 (1), pp. 114 – 131, DOI: https://doi.org/10.21041/ra.v10i1.419 |
RESUMEN
El objetivo de este trabajo fue realizar un diagnóstico que explique el mecanismo de colapso, en apenas 80 minutos, del edificio Wilton Paes de Almeida, lo cual fue sorprendente para la ingeniería del concreto estructural. Incendios anteriores, como el del Edificio Andraus, el Joelma y la Gran Avenida, resistieron más de 4 h de fuego sin derrumbarse y se encuentran actualmente en uso. Para entender ese colapso inusitado, se realizó una investigación experimental de las características y propiedades del concreto y de la armadura empleados en esa estructura, con base en un "proyecto estructural hipotético" que consideró las características reales de los materiales empleados. A partir del diagnóstico se establecieron recomendaciones para que casos como éste no se repitan.
Palabras clave:
colapso,
edifício Wilton Paes de Almeida,
diagnóstico
ABSTRACT
The objective of this work was to make a diagnosis that explains the mechanism of collapse, in just 80 minutes, of the Wilton Paes de Almeida building, which was surprising for the engineering of structural concrete. Previous fires, such as that of the Andraus Building, the Joelma and the Great Avenue, withstood more than 4 hours of fire without collapsing and are currently in use. To understand this unusual collapse, an experimental investigation of the characteristics and properties of the concrete and the reinforcement used in that structure was carried out, based on a "hypothetical structural project" that considered the actual characteristics of the materials used. Based on the diagnosis, recommendations were established so that cases like this do not recur.
Keywords:
collapse,
Wilton Paes de Almeida building,
diagnosis
RESUMO
O objetivo deste trabalho foi fazer um diagnóstico que explique o mecanismo de colapso, em apenas 80 minutos, do edifício Wilton Paes de Almeida, o que foi surpreendente para a engenharia de concreto estrutural. Incêndios anteriores, como o Edifício Andraus o Joelma e o Grande Avenida, resistiram a mais de 4 horas de incêndio sem desmoronar e estão atualmente em uso. Para entender esse colapso incomum, foi realizada uma investigação experimental das características e propriedades do concreto e da armadura usada nessa estrutura, com base em um "projeto estrutural hipotético" que considerou as características reais dos materiais utilizados. Com base no diagnóstico, foram estabelecidas recomendações para que casos como esse não se repitam.
Palavras-chave:
colapso,
edificio Wilton Paes de Almeida,
diagnóstico
1. IntroducciÓn
El estudio experimental de estructuras de hormigón bajo altas temperaturas, incendios, exige altos recursos financieros y una gran estructura de laboratorio instalada, lo que permite probar partes significativas de una estructura de hormigón armado, con cimientos, columnas/pilares, vigas y losas, además de la interacción no despreciable con la mampostería. Esta capacitación aún no existe en todo el mundo y en la bibliografía tecnocientífica, solo existe el registro del experimento realizado en el Laboratorio de Cardington (CHANA; PRECIO, 2003).
Hasta ahora, la Ingeniería se ha contentado con extrapolar los resultados obtenidos de especímenes y pequeños elementos estructurales, aislados y la mayoría de las veces sin carga, para originar "modelos" muy creativos que nos permitan predecir el comportamiento de la estructura real, frente a un fuego
Otra dificultad importante es el hecho de que todos los resultados limitados de las pruebas de laboratorio dependen de un "fuego" estándar diseñado por una curva ISO 834 (1999) o ASTM E119 (2019) que en la mayoría de las veces no corresponde al fuego real.
Dadas estas limitaciones insuperables hasta la fecha, este artículo, así como otros, por ejemplo, los artículos sobre el incendio del edificio Windsor en Madrid en 2005, investigados por Alonso (2008) del IET (Instituto Eduardo Torroja del Cemento y Concreto) y Calavera Ruiz y col. (2005) por INTEMAC (Instituto Técnico de Materiales y Construcciones), y el informe de colapso de las Torres del World Trade Center, donde los estudios culminaron en el cambio de altos estándares de diseño de edificios (NIST, 2005), estudian los casos de incendios reales, que buscan extraer lecciones que a menudo son imposibles a partir de pruebas de laboratorio costosas y limitadas.
En opinión de estos autores, la mayor contribución es reunir toda la información posible de un evento desastroso como el colapso ocurrido en solo 80 minutos, del Edificio Wilton Paes de Almeida, para permitir un diagnóstico del evento y así comprender un poco más sobre la complejidad de los estudios de predicción del comportamiento de estructuras de hormigón armado bajo fuego. Por lo tanto, la contribución científica está bien caracterizada en la investigación realizada, buscando información y datos que puedan explicar este colapso temprano.
de estructuras de hormigón armado bajo fuego. Por lo tanto, la contribución científica está bien caracterizada en la investigación realizada, buscando información y datos que puedan explicar este colapso temprano.
2. Historia
Comenzado a principios de la década de 1960, el edificio Wilton Paes de Almeida fue completado en 1968 por la empresa constructora Morse & Bierrenbach, para servir como sede del conglomerado empresarial del político y empresario Sebastião Paes de Almeida. El edificio ocupaba un terreno de 650 m² y su área construida totalizaba 12,000 m² (Aleteia, 2018).
Con las características del típico edificio miesiano, tenía una estructura de hormigón armado, con solo cuatro (4) columnas/pilares empotrados de hormigón armado con sección "H", que soportava losas de hormigón acanalado en la región central y un voladizo de losa masiva en la periferia (Figura 1). En la fachada, el grosor delgado de las losas hizo posible utilizar un marco de ventana de aluminio igualmente delgado que fija las láminas de vidrio verde de la casa Rayban, sistema ese denominado de piel de vidrio.
![]() |
||||
| Figura 1. Vista del edificio Wilton Paes de Almeida y planos de planta baja y tipo | ||||
La principal empresa que ocupó el edificio en sus inicios fue CVB (Compañía Comercial de Vidrio de Brasil). Después de un año de actividad de CVB, el edificio tenía, también, una agencia de Caixa Econômica Federal en la planta baja.
Considerado un hito de desarrollo porque es el primer edificio en el país con una fachada de piel de vidrio, fue, en 1992, considerado histórico, por el Consejo Municipal para la Preservación del Patrimonio Histórico, Cultural y Ambiental de la Ciudad de São Paulo (CONPRESP).
Posteriormente, el edificio recibiría un puesto del INSS y a principios de la década de 2000 comenzó a albergar a la Policía Federal. Durante este período, no hay registros de renovaciones significativas para mantener el edificio en buenas condiciones.
Años más tarde, ambas agencias públicas dejaron Wilton Paes de Almeida para que quedara a la venta en febrero de 2015 por la Secretaría del Patrimonio Sindical (SPU) del Ministerio de Ciudades. Con la duración del proceso y la falta de interesados en la compra, el edificio fue invadido por personas pobres y sin hogar (News Rondonia, 2018).
Al amanecer del primer día de mayo de 2018, un incendio provocó el colapso del edificio Wilton Paes de Almeida. El incendio comenzó alrededor de la 1h30 a.m. y las llamas comenzaron con un probable cortocircuito en el quinto piso (G1, 2018).
En poco tiempo, debido a las características constructivas del edificio, el fuego se propagó rápidamente a través de los otros pisos, tanto hacia arriba (como se esperaba) como hacia abajo (inesperado), tomando toda la estructura, desde la planta baja hasta el techo. Alrededor de las 2h50 a.m., todo el edificio, todavía en llamas, se derrumbó sobre sí mismo (Figura 2), causando la muerte de siete personas y muchos daños a los edificios vecinos, así como grandes problemas para las familias e interrupción del tráfico y de la libre circulación de personas en la región.
![]() |
||||
| Figura 2.
Edificio Wilton Paes de Almeida después de su colapso. (fuente: colección personal de Paulo Helene) |
||||
Con ese colapso en la plaza Paissandu, es evidente las diversas pérdidas y riesgos que la falta de mantenimiento y negligencia con el patrimonio puede causar a la sociedad. Hubo siete personas que perdieron la vida, unas 92 familias que perdieron el techo que las albergaba; 220 millones de brasileños que perdieron una propiedad de la Unión valorada en más de US$ 7 millones, e innumerables otros inconvenientes para las personas que viven y trabajan en las propiedades que rodean el edificio derrumbado (Figura 3).
![]() |
||||
| Figura 3.
Daño a la Iglesia Luterana, junto a Ed. Wilton Paes de Almeida (fuente: colección personal de Paulo Helene) |
||||
Dado el inusual colapso de este edificio, el PMSP (Ayuntamiento de São Paulo) a través del Prof. Vitor Castex Aly, Secretario de Infraestructura, y el Ing. Julio Timerman, presidente de IBRACON (Instituto Brasileño del Concreto), firmaron un protocolo de cooperación técnica para permitir los estudios de ese caso, que quedó bajo la responsabilidad científica del Director Técnico de IBRACON, Prof. Paulo Helene.
3. Seguridad contra incendios del edificio
El colapso prematuro en solo 80 minutos del edificio Wilton Paes de Almeida (WPA) sorprendió la ingeniería de las estructuras de hormigón. Desde la concepción de este sistema de construcción, patentado por François Hennebique en 1892, quien utilizó como eslogan de su publicidad "plus d'incendies désastreux", es decir, nunca más incendios desastrosos, se sabe que el hormigón armado tiene una alta resistencia estructural, a la acción del fuego y del clima. Un ejemplo de esta durabilidad se puede ver en la Figura 4, que muestra el primer edificio realizado en 1900 con elementos estructurales de hormigón armado, ubicado en la Rue Danton, 1, París - Francia, con el sistema Hennebique, que todavía está en pleno uso hoy en día.
![]() |
||||
| Figura 4.
Primer edificio del mundo diseñado con el sistema Hennebique (119 años de buen servicio a la sociedad) (fuente: colección personal de Paulo Helene). |
||||
Desde 1900 hasta hoy día, ha habido una gran evolución del hormigón y con la llegada del hormigón de alta resistencia, por encima de 100 MPa, volvieron las dudas sobre el buen comportamiento del hormigón bajo fuego. Los estudios realizados por Britez (2013) con columnas/pilares de hormigón de alta resistencia (140 MPa) sometidos a altas temperaturas desmitificaron las creencias y dudas de la época en que el hormigón de alta resistencia "explotó" en una situación de incendio, presentando un pronunciado efecto de desprendimiento, lo que podría conducir al colapso temprano de edificios diseñados con este tipo de concreto.
Las columnas/pilares probados, hechos de hormigón armado coloreado, presentaron un rendimiento excelente, manteniendo sus bordes intactos. La reducción en la resistencia a la compresión del hormigón solo se observó en las regiones periféricas, aproximadamente 3 cm, bajo una exposición al fuego de 180 minutos. El acero del refuerzo no perdió resistencia después del enfriamiento y el contenido de portlandita presente en la muestra también indicó que la profundidad de la acción nefasta del fuego era muy superficial, máximo de 3 cm en 3 h de fuego estándar.
Corroborando la afirmación de que el hormigón presenta un excelente desempeño contra la acción del incendio, incendios anteriores como del Edificio Andraus, Joelma y del Edificio Grande Avenida, todos en São Paulo y construidos en los mismos años 60, resistieron más de 4 h de incendio sin colapso y actualmente están en uso normal.
Este colapso prematuro del WPA debe considerarse un hecho grave, tanto desde el punto de vista de la evacuación de los edificios por parte de los usuarios, como desde el punto de vista de la seguridad de los bomberos en sus actividades de rescate y extinción de incendios, así como la seguridad del vecindario circundante que no puede ser golpeado por los detritos, es decir, los edificios no pueden colapsar tan rápido frente a un incendio.
4. ReconstrucciÓn de la estructura
Bajo un arduo trabajo de anamnesis para obtener información y diseños del edificio, algunos planos arquitectónicos que describen la geometría de los pilares se encontraron en los registros de FAU.USP (Facultad de Arquitectura de la Universidad de São Paulo). De manera interesante y sorprendente, la sección exterior de las columnas/pilares era cuadrada y constante con 85 cm de lado, pero su robusta sección transversal en forma de H era escalonada y variable de piso a piso. Además, dos caras opuestas definieron un “shaft” (fuste/hueco) que era continuo a lo largo de la altura de la columna, desde el subsuelo hasta el techo, como se muestra en la Figura 5. Estos huecos fueron diseñados y construidos para alojar la circulación del aire acondicionado central.
![]() |
||||
| Figura 5. El escalonamiento de las columnas/pilares | ||||
Junto con estas plantas se verificaron en los archivos de la SPU (Secretaría del Patrimonio de la Unión) varios proyectos de adaptación realizados y propuestos durante los años de funcionamiento del edificio que fue sede de la Policía Federal, Caixa Econômica y otras empresas. El ingeniero Leandro Coelho de SPU proporcionó fotos de su colección personal tomadas a lo largo de los años, donde fue posible confirmar, con cierto grado de precisión, la tipología estructural empleada en el edificio Wilton Paes de Almeida (Figura 6).
![]() |
||||
| Figura 6. Columna de hormigón, donde se puede ver la "H", que en realidad es un hueco para aire acondicionado y la losa y vigas. (fuente: colección personal de Leandro Coelho) |
||||
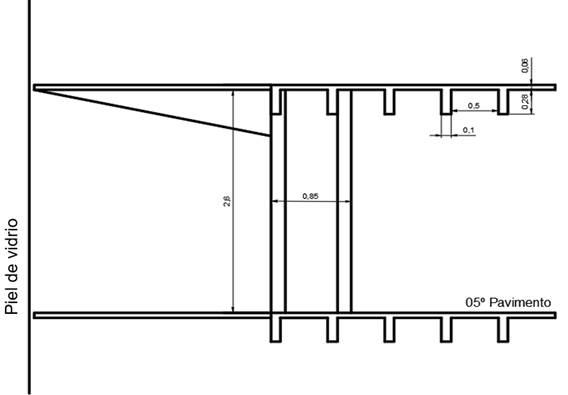
Las losas del edificio eran nervadas y se moldearon en el sitio con un grosor de mesa superior de 6 cm (Figura 7). Las costillas tenían 10 cm de ancho y 28 cm de alto hasta el fondo de la losa o la mesa superior, y estaban separadas cada 50 cm. Desde las columnas/pilares hasta el límite donde se instaló la piel de vidrio, la losa estaba en equilibrio, con una sección triangular masiva que se reducía en función de la distancia a la columna/pilar (Figura 8).
![]() |
||||
| Figura 7. Esquema de la losa nervada (Fuente: FAU-USP) | ||||

Figura 8.
Corte de la losa nervada
Por lo tanto, el sistema estructural principal de la estructura, responsable de su estabilidad, estaba compuesto por columnas/pilares de concreto con sección "H", formando pórticos en una sola dirección con vigas con bandas, a la misma altura de la losa, agregadas a las paredes de concreto de las cajas de ascensor y escalera. Además, una gran pared reticulada, compuesta por columnas/pilares, vigas y mampostería, formando una pared estructural de divisa con un vecino, como se puede observar en el modelo hipotético presentado en la Figura 9.
![]() |
||||
| Figura 9. Perspectivas frontal y posterior de la estructura de Ed. Wilton Paes de Almeida. (fuente: interpretación de proyectos existentes en FAU-USP, SPU y Acrópole Magazine) | ||||
5. Propiedades del hormigÓn armado
A continuación, se presentarán las actividades de recolección de muestras y el plan de ensayos establecido para conocer las propiedades físicas y mecánicas de los materiales utilizados.
5.1 Recolección de muestras
Se seleccionaron dos muestras grandes de la superestructura colapsada del edificio para las pruebas de caracterización, una sección de losa y una sección de columna/pilar (Figura 10).
![]() |
||||
| Figura 10. Secciones de losa en voladizo y columnas/pilares recogidos de los escombros para los ensayos (fuente: colección personal de Paulo Helene) | ||||
5.2 Plan de Ensayos
Con respecto a las muestras de hormigón, se establecieron las siguientes actividades y pruebas específicas: levantamiento geométrico; extracción de testigo; caracterización mineralógica del agregado; apreciación petrográfica de minerales naturales; resistencia a la compresión; resistencia a la tracción; esclerometría; ultrasonido; módulo de elasticidad; prueba de absorción de agua; índice de vacíos; masa específica; reconstitución de mezcla; difracción de rayos X; análisis termodiferenciales y termogravimetría; carbonatación.
Con respecto a las muestras de acero, se establecieron las siguientes actividades y pruebas específicas: tipología del acero empleado; composición química y metalúrgica; tracción plegable estiramiento y metalografía.
5.3 Resultados - hormigón
Los resultados de os ensayos realizados en hormigón se pueden consultar en su totalidad en el informe de diagnóstico completo preparado por los autores (Helene et. al., 2019), pues acá se presenta solo su análisis.
5.3.1 Esclerometria
El ensayo de "evaluación de la dureza de la superficie por esclerómetro de reflexión" se realizó en los laboratorios de la Universidad Presbiteriana Mackenzie (UPM), de acuerdo con ABNT NBR 7584: 2013. Se realizaron 224 impactos en 14 áreas de prueba diferentes, la mitad de ellas en superficies expuestas al fuego y la otra mitad en superficies cortadas (núcleo), denominadas cara expuesta y núcleo, respectivamente.
Se observó que hubo una reducción significativa en los valores del índice de reflexión obtenidos de las caras externas en relación con los valores obtenidos del núcleo. En las caras que fueron golpeadas por las llamas, se obtuvo un valor de índice de reflexión promedio del 24% (correspondiente a la resistencia a la compresión cilíndrica de 16 ± 4.8 MPa), mientras que las mediciones tomadas en el núcleo fornecieran un valor promedio del 30% (correspondiente a la resistencia a la compresión cilíndrica de 26 ± 6,3 MPa).
5.3.2 Sección transversal de la columna
Después del corte de diamante de la sección de la columna recolectada de los escombros, fue evidente la disposición del refuerzo dentro de la columna, y luego fue posible reconstruir la sección transversal del estiramiento de la columna muestreada, como se muestra en la Figura 11.
![]() |
||||
| Figura 11. Reconstitución de la sección transversal de la columna recuperada de escombros/detritos. | ||||
Con el conocimiento de la sección transversal, la disposición de las barras de acero y sus respectivos diámetros promedio, fue posible estimar la tasa de refuerzo longitudinal en aproximadamente 3%, que es convencional para edificios de varios pisos.
La cubierta de refuerzo, una verificación importante de los criterios de durabilidad y resistencia al fuego, varió de 1 cm a 5 cm en la muestra recolectada, lo que, una vez más, mostró una falta de control y cuidado, típico y común en la época de la ejecución del edifício
Desde el punto de vista de la resistencia al fuego, la cubierta (C1) que se utiliza para el cálculo de la resistencia al gradiente térmico, se extiende desde la cara externa de la columna hasta el centro del refuerzo principal, que en este caso varió de 2.5 cm a 6.5 cm.
Todavía en la sección de coulmna recogido, se encontró la intersección pilar-losa, y su armadura evidente. Por lo tanto, fue posible determinar la disposición del refuerzo en la viga que soportaba la losa (Figura 12).
![]() |
||||
| Figura 12. Configuración del refuerzo de la viga (idealizado). | ||||
5.3.3 Extracción de testigos
Las pruebas de extracción se realizaron en UPM. Además de las pruebas de resistencia a la compresión uniaxial y resistencia a la tracción diametral, varios análisis químicos y físicos dependieron sustancialmente de la disponibilidad de muestras en proporciones apropiadas para realizarlas; así, la extracción de muestras para las pruebas fue fundamental.
En total, se realizaron 16 extracciones, de las cuales solo 06 (seis) podrían caracterizarse como núcleos utilizables para la resistencia mecánica, debido a la gran cantidad de grietas internas, como se muestra en la Figura 13. Estas grietas posiblemente fueron causadas por una deficiente densificación del concreto en el momento de la construcción del edificio y, muy probablemente, también por los esfuerzos dinámicos resultantes de la caída de la superestructura durante el colapso del edificio.
![]() |
||||
| Figura 13. Grietas visibles durante la extracción y testigo descompuesto. (fuente: colección personal de Paulo Helene) | ||||
5.3.4 Resistencia a la compresión
Las pruebas se realizaron en los laboratorios UPM, siguiendo el procedimiento de los estándares ABNT NBR 5739 y ABNT NBR 7680, obteniendo la resistencia a la compresión promedio de 21.8 MPa.
Los resultados obtenidos son consistentes con el hormigón producido en la época, donde las resistencias especificadas fueron alrededor de 135 kgf/cm² (13.5 MPa) a 180 kgf/cm² (18 MPa).
Para fines de evaluación estructural se supuso que la resistencia a la compresión característica del hormigón era fck = 15 MPa.
5.3.5 Resistencia a la tracción
Las pruebas de resistencia a la tracción se realizaron en laboratorios UPM, siguiendo el procedimiento del estándar ABNT NBR 7222, obteniendo el valor promedio de 2.1 MPa.
El resultado obtenido corresponde aproximadamente al 10% del valor obtenido para la resistencia a la compresión, que es totalmente satisfactorio, coherente y esperado para los hormigones de esa época, en São Paulo.
5.3.6 Ultrasonido y módulo de elasticidad.
La prueba de determinación de velocidad ultrasónica se realizó en los laboratórios dela PhD Engenharia, para determinar el módulo dinámico de elasticidad, siguiendo el procedimiento del estándar ABNT NBR 8802, obteniendo una velocidad de propagación de onda promedio de 3707 m / s.La prueba de determinación del módulo de elasticidad dinámica del estímulo de impacto también se realizó en PhD, siguiendo el procedimiento de ASTM C215, donde se obtuvieron los valores de 19.6 GPa (longitudinal) y 12.3 GPa (transversal).
Basado en la disertación maestra de Bilesky (2016), fue posible estimar el módulo estático convencional de elasticidad, que oscila entre 20 GPa y 26 GPa, es decir, perfectamente compatible para el hormigón en cuestión.
5.3.7 Prueba de absorción de agua, índices vacíos y masa específica.
Las pruebas de determinación de absorción de agua, índice de huecos y masa específica se realizaron siguiendo el procedimiento del estándar ABNT NBR 9778 y se realizaron en los laboratorios de UPM. Se tomaron muestras del núcleo del pilar/columna.
Se obtuvieron los siguientes resultados promedio:
Absorción de agua ( 6.52%, índice de huecos ( 14.75% y masa específica ( 2.260 kg / m³
Se concluye que los resultados obtenidos son consistentes con la calidad de un hormigón del orden de f ck = 15 MPa.
5.3.8 Reconstitución de la mezcla
La prueba de reconstitución de mezclas se realizó en el laboratorio de la Asociación Brasileña de Cemento Portland (ABCP), siguiendo el procedimiento del estándar interno ABCP PO-GT 3016.
Para los cálculos de proporción de masa, se adoptó un valor de óxido de calcio del 60%. No se tuvo en cuenta la posible presencia de materiales calizos vinculados a los agregados gruesos y finos.
Las mezclas de hormigón encontradas en las pruebas fueron 1: 5.9 en las columnas y 1: 6.2 en las losas, en masa seca de cemento / agregados y pueden considerarse compatibles con aquella época, correspondiente a un consumo de contenido por metro cúbico promedio de 309 kg/m³, con una relación agua/cemento de 0,65.
Los resultados obtenidos son apropiados para la clase de agresividad en la que se insertó la estructura (clase II de ABNT NBR 12655: 2015) y representan el hormigón encontrado en ese momento.
5.3.9 Difractometría de rayos X, termodiferencial y termogravimetría
La difractometría de rayos X, el análisis termodiferencial y las pruebas de termogravimetría se realizaron en el laboratorio ABCP, siguiendo el procedimiento del estándar interno ABCP PO-GT 5042. Estas pruebas tenían como objetivo identificar las fases cristalinas que componen las muestras de hormigón sometidas a altas temperaturas. que se analizaron en el difractómetro de rayos X, además de reconocer, a través de termogramas, la presencia de picos referidos a hidratos de cemento, hidróxido de calcio y carbonato de calcio, constituyentes de la pasta hidratada, además de los relacionados con el cuarzo presente en el agregado fino. Al identificar la presencia o ausencia de ciertos compuestos mineralógicos, es posible evaluar la temperatura alcanzada por un elemento estructural de hormigón a diferentes profundidades en un episodio de incendio. Los resultados de estos análisis se pueden encontrar en las tablas 1 y 2.
Tabla 1. Compuestos mineralógicos de muestras de hormigón.
Minerales
Química aproximada
Distancia interplanar principal (Å)
Frecuencia relativa
(arriba)
b
(medio)
c
(base)
d
(arriba)
e
(medio)
f
(base)
Feldespato
(Na0,5-0,3, Ca0,5-0,7) Al (Al0,5-0,7, Si0,5-0,3) Si2O8
3,20
*
*
*
**
-
**
Mica
KAl2(AlSi3O10)
(OH)8
9,99
**
*
**
**
**
***
Cuarzo
SiO2
3,33
****
**
***
****
**
***
Calcita
CaCO3
3,03
**
*
*
*
*
*
Portlandita
Ca(OH)2
4,90
***
****
****
**
****
****
Simbología
- = no detectado
** = poco frecuente
tr = rastros
*** = frecuente
* = presente
**** = muy común
Nota:
La evaluación semicuantitativa (expresada en número de asteriscos) de las fases se basa en la altura de los picos de difracción, cuya intensidad es función del contenido, la simetría y el grado de cristalinidad del constituyente.
Tabla 2. Resultados de las pruebas termodiferenciales y termogravimétricas.
dentificación de la muestra
Pérdida de masa (%)
40º a 200°C
(Pérdida de agua libre y / o adsorbida y descomposición de silicatos hidratados.)
200º a 400°C
(Descomposición de aluminatos hidratados.)
400º a 500°C
[Descomposición de Ca(OH)2]
500º a 800°C
(Descarbonización de CaCO3)
Ca(OH)2
CaCO3
214424
arriba
4,59
2,03
1,32
10,34
5,4
23,5
medio
7,54
4,86
3,85
2,90
15,8
6,6
base
8,14
4,81
4,16
2,97
17,1
6,8
214425
arriba
4,35
2,79
1,46
11,53
6,0
26,2
medio
8,38
5,45
4,18
4,31
17,1
9,8
base
6,42
4,00
2,84
3,81
11,7
8,7
Como se muestra en las Tablas 1 y 2, las muestras de superficie de la columna en la región de cobertura dieron como resultado contenidos de portlandita tres veces más bajos que las muestras de núcleo, lo que es consistente con la apariencia friable encontrada en la región de cobertura in situ estando más intacto en la región de refuerzo (núcleo de la columna).
En conclusión, estas pruebas permiten estimar que la alta temperatura solo actuó en la superficie del hormigón estructural, aproximadamente menos de 1 cm. Esta también puede ser una de las razones de la integridad mecánica del refuerzo, es decir, dado que tenía más de 1 cm, no se vio afectado por las altas temperaturas (por debajo de 573°C).
5.3.10 Evaluación petrográfica de agregados
La microscopía estereoscópica de los componentes de hormigón del Edificio Wilton Paes de Almeida fue realizada por el geólogo Dr. Cláudio Sbrighi Neto siguiendo el procedimiento del estándar ABCP PO-GT 3016 rev. 02.
Se extrajeron cuatro (4) fracciones de la muestra de columna en función de la distancia desde la muestra a la superficie. Se observó que el hormigón analizado está compuesto de grava y agregados de arena de la trituración de rocas y arena de río. Los análisis sugieren una buena calidad de los agregados. El agregado grueso proviene de roca ígnea, llamada petrográficamente granito de biotita. La presencia de una roca máfica, probablemente proveniente de un eje de esta roca que atraviesa el macizo, se observó en menor medida.
Desde el punto de vista petrográfico, los agregados tienen buenas características para ser utilizados en hormigones y no se observaron características causadas por la exposición nociva al fuego. Por ejemplo, no se observó la presencia de cristales de cuarzo fracturados y fracturas en sus interfaces cristalinas que son indicativas de transformaciones alotrópicas de cuarzo. Estas transformaciones alotrópicas de cuarzo alfa en cuarzo beta ocurren con un aumento de volumen cuando la temperatura teórica alcanza los 573°C, es decir, esto puede ser evidencia de que el concreto no fue sometido a temperaturas superiores a 570°C. Conclusión razonable porque el tiempo de exposición al fuego fue muy corto, del orden de 1 h.
5.3.11 Medida de carbonatación
La determinación de la profundidad de carbonatación se analizó usando un indicador químico de pH basado en fenolftaleína. Se eligieron caras externas y, por lo tanto, en teoría, regiones expuestas a las llamas.
Las mediciones fueron realizadas por PhD Engenharia, obteniendo para la capa de carbonatación en las regiones más afectadas profundidades que van desde 2.5 cm a 3.0 cm, lo que corrobora la hipótesis de que elementos estructurales recubiertos, como fue el caso de las columnas/pilares de este edificio, tienen una mayor durabilidad, ya que el recubrimiento actúa como otra barrera contra la penetración del frente de carbonatación y el calor.
Teniendo en cuenta que era una estructura de aproximadamente 54 años, la profundidad de carbonatación encontrada muestra hormigón de calidad y compatible con el tiempo.
5.4 Resultados - Acero
Los resultados de las pruebas de acero se pueden consultar en su totalidad en el documento preparado por el equipo técnico de ArcelorMittal (Anexo I del informe técnico completo Helene et al.2019), y aquí solo se presenta un resumen de ellos.
5.4.1 Tipología del acero empleada
El acero utilizado en el refuerzo WPA era de dos tipos, y fueron nombrados con muescas y lisos debido a su conformación superficial. Debido a su forma original, las barras "con muescas" con depresiones presentadas uniformemente varían su angulación en 90 °, como se muestra en la Figura 14.
![]() |
||||
| Figura 14. Clasificación de muestras de acero según su calibre. (fuente: Arcellor Mittal) | ||||
Después de la investigación y las contribuciones del Prof. Dr. Eduardo Thomaz, se cree que las barras de acero para hormigón armado fueron fabricadas por la empresa Peristahl S.A., que en ese momento operaba en el mercado brasileño. Estas barras están endurecidas en frío por mordida en direcciones normales y ortogonales, y en este caso tienen los siguientes diámetros: 8, 10, 16, 20 y 22 mm.
5.4.2 Composición química
Las muestras del edifício se compararon con los parámetros actuales para cada elemento químico presente, y los límites estipulados por ABNT NBR 8965, que, para los componentes presentes en el estándar (valores máximos: C = 0.29; Mn = 0.91). ; Si = 0.41; P = 0.14; S = 0.07 y Ceq = 0.47) estuvieron en su mayoría por debajo de los límites máximos (0.38, 1.56, 0.55, 0.058 0.058 y 0.59, respectivamente), y por lo tanto son adecuados para los parámetros de soldabilidad, ductilidad y resistencia requeridos para su uso en hormigón armado.
5.4.3 Tracción / Estiramiento
Todas las muestras se analizaron para determinar la resistencia a la tracción (fst que varía de 470MPa a 760MPa; fyk que varía de 320MPa a 640MPa; elongación que varía del 3% al 35% y todas mostraron ruptura dúctil). En comparación con la estandarización actual de ABNT NBR 7480, se puede inferir que este refuerzo se puede considerar como acero de grado CA 60.
5.4.4 Metalografía
Los análisis metalográficos realizados a diferentes aumentos mostraron que las muestras de barras con muescas longitudinales de calibre 22, 20 y 16 mm corresponden al acero CA 60 y las barras transversales planas de calibre 10 mm y las barras complementarias planas de calibre 8 mm corresponden al acero AC 37. Un ejemplo de análisis metalográfico se puede ver en la Figura 15.
![]() |
||||
| Figura 15. 22 mm de diámetro, 200x superficie de muestra de barra de acero ampliada (Fuente: ArcelorMittal Lab) | ||||
6. Consideraciones finales
Basado en el extenso programa de ensayos, las muchas e incluso contradictorias fuentes de información disponibles, y las simulaciones de modelos estructurales realizadas, se pudo concluir que:
En conclusión, el diagnóstico mostró que a partir de un "diseño estructural hipotético", debido a que no se encontró el diseño estructural original, fue posible explicar el colapso por un efecto de torsión generado por las altas temperaturas. Al ser un edificio con estructura asimétrica, las deformaciones térmicas indujeron tensiones torsionales muy por encima de la resistencia de la estructura.
Como recomendaciones finales, destacamos:
7. Agradecimientos
Los autores reconocen y agradecen a las siguientes empresas y entidades: ArcelorMittal, Associação Brasileira de Cimento Portland (ABCP), Associação Brasileira de Engenharia e Consultoria Estrutural (ABECE), Cooperativa de Serviços e Pesquisas Tecnológicas e Industriais (CPTI), Corpo de Bombeiros da Polícia Militar do Estado de São Paulo (CBPMESP), Demolidora Santos Filho, Engefuro, Escola Politécnica da Universidade de São Paulo (EPUSP), Instituto de Pesquisas Tecnológicas (IPT), PhD Engenharia, Prefeitura Municipal de São Paulo (PMSP), São Paulo Obras (SPObras), São Paulo Urbanismo (SPU), Secretaria Municipal de Infraestrutura Urbana e Obras (SIURB), Secretaria do Patrimônio da União (SPU), Superintendência da Polícia Técnico-Científica (SPTC), Universidade do Vale do Rio dos Sinos (UNISINOS), Universidade Federal de Goiás (UFG), Universidade Federal de Santa Maria (UFSM) y Universidade Presbiteriana Mackenzie (UPM).
Referencias
Alonso, C. (2008), Assessment of post-fire reinforced concrete structures: Determination of depth of temperature penetration and associated damage. Concrete Repair, Rehabilitation and Retrofitting II - Alexander et al (eds)© 2009 Taylor & Francis Group, London, ISBN 978-0-415-46850-3.
Aleteia (1992), “A trajetória do prédio que desabou no centro de São Paulo”. 28/05/2018. Disponível em: https://pt.aleteia.org/2018/05/02/a-trajetoria-do-predio-que-desabou-no-centro-de-sao-paulo/ , acesso em 08/03/2019.
Andrade, C. (1992), Manual para diagnóstico de obras por corrosão de armaduras. PINI, 104p
American Society of Test Materials. (2000), ASTM E119: standard methods of fire test of building construction and materials: fire and flammability standards, test method. West Conshohocken, PA.
Bilesky, P. (2016), Contribuição aos estudos do módulo de elasticidade do concreto. Dissertação. IPT Instituto de Pesquisas Tecnológicas, 298 p. Orientador: Paulo Helene.
Britez, C., Castro-Borges, P., Berto, A., Helene, P. (2013), Experimental evaluation of colored HSC column in fire conditions. Revista ALCONPAT, CONPAT, vol. 3 nº 1, p. 39-54, DOI: 10.21041/ra.v3i1.42
Calavera Ruiz, J. et. al. (2005), Comportamiento de la estrutura del edifício Windsor de Madrid frente al incêndio sufrido. Ingenieria Estructural, n. 37, p. 27-39.
Chana, P., Price, B. (2003), The Cardington fire test. Concrete (London), v.37, n.1, p. 28-33.
G1 (2018), “Incêndio em prédio de SP foi causado por curto-circuito em tomada no 5º andar, diz secretário”. 03/05/2018. Disponível em: https://g1.globo.com/sp/sao-paulo/noticia/incendio-em-predio-de-sp-foi-causado-por-curto-circuito-em-tomada-no-5-andar-diz-testemunha.ghtml, acesso em 20/03/2019
Helene P., et. al. (2019), Edifício Wilton Paes de Almeida. Histórico, anamnese, estudos, ensaios e análises da estrutura de concreto armado do edifício Wilton Paes de Almeida, que sofreu incêndio e colapso no dia 1o de maio de 2018, sito a Rua Antônio de Godoy, 581, Largo do Paissandu, São Paulo, S. P. (2019). Recomendações Técnicas. Parecer Técnico PhD 324/2019. Abril, 2019. 100p. Disponível em www.phd.eng.br.
International Organization for Standardization. (1999). ISO 834: fire resistance tests: elements of building construction: part 1. General requirements. Geneva.
National Institute of Standards and Technology. (2005). Final report on the collapse of the World Trade Center Towers. NIST NCSTAR 1. September, 302p.
News Rondônia (2018). “A história do edifício Wilton Paes de Almeida no Largo do Paissandu”. 03/05/2018. Disponível em http://www.newsrondonia.com.br/noticias/a+historia+do+edificio+wilton+paes+de+almeida+no+largo+do+paissandu/110221. Acesso em 08/03/2019.
Revista Acrópole (2019). Ano 27 - N° 323, Nov. 1965. Disponível em: http://www.acropole.fau.usp.br/edicao/323/14 , acesso em 08/03/2019.
François Hennebique (2019). Disponível em: http://www.fr.wikipedia.org/wiki/Fran%C3%A7ois_Hennebique, em 08/03/2019.