
| Pesquisa Documental | https://doi.org/10.21041/ra.v10i1.419 |
Colapso do Edifício Wilton Paes de Almeida - SP: lições aprendidas
Fire and collapse of the Wilton Paes de Almeida building in São Paulo, Brazil. Lessons learned
El incendio y colapso del edificio Wilton Paes de Almeida en São Paulo, Brasil: lecciones aprendidas
P.
Helene1
*
, J. Pacheco2
, D. Couto3
1 Professor Titular da EPUSP. PhD Engenharia, São Paulo, Brasil..
2 PhD Engenharia, São Paulo, Brasil..
3 Universidade Estadual de Campinas (UNICAMP). PhD Engenharia, São Paulo, Brasil..
* Autor de Contato: paulo.helene@concretophd.com.br
Recepção:
07
de
junho
de
2019.
Aceitação:
22
de
novembro
de
2019.
Publicação: 30 de dezembro de 2019
| Citar como: Helene, P., Pacheco, J., Couto, D. (2020), ”Colapso do Edifício Wilton Paes de Almeida – SP: lições aprendidas”, Revista ALCONPAT, 10 (1), pp. 114 – 131, DOI: https://doi.org/10.21041/ra.v10i1.419 |
RESUMO
O objetivo deste trabalho foi fazer um diagnóstico que explique o mecanismo de colapso, em apenas 80 minutos, do edifício Wilton Paes de Almeida, o que foi surpreendente para a engenharia de concreto estrutural. Incêndios anteriores, como o Edifício Andraus o Joelma e o Grande Avenida, resistiram a mais de 4 horas de incêndio sem desmoronar e estão atualmente em uso. Para entender esse colapso incomum, foi realizada uma investigação experimental das características e propriedades do concreto e da armadura usada nessa estrutura, com base em um "projeto estrutural hipotético" que considerou as características reais dos materiais utilizados. Com base no diagnóstico, foram estabelecidas recomendações para que casos como esse não se repitam.
Palavras-chave:
colapso,
edificio Wilton Paes de Almeida,
diagnóstico
ABSTRACT
The objective of this work was to make a diagnosis that explains the mechanism of collapse, in just 80 minutes, of the Wilton Paes de Almeida building, which was surprising for the engineering of structural concrete. Previous fires, such as that of the Andraus Building, the Joelma and the Great Avenue, withstood more than 4 hours of fire without collapsing and are currently in use. To understand this unusual collapse, an experimental investigation of the characteristics and properties of the concrete and the reinforcement used in that structure was carried out, based on a "hypothetical structural project" that considered the actual characteristics of the materials used. Based on the diagnosis, recommendations were established so that cases like this do not recur.
Keywords:
collapse,
Wilton Paes de Almeida building,
diagnosis
RESUMEN
El objetivo de este trabajo fue realizar un diagnóstico que explique el mecanismo de colapso, en apenas 80 minutos, del edificio Wilton Paes de Almeida, lo cual fue sorprendente para la ingeniería del concreto estructural. Incendios anteriores, como el del Edificio Andraus, el Joelma y la Gran Avenida, resistieron más de 4 h de fuego sin derrumbarse y se encuentran actualmente en uso. Para entender ese colapso inusitado, se realizó una investigación experimental de las características y propiedades del concreto y de la armadura empleados en esa estructura, con base en un "proyecto estructural hipotético" que consideró las características reales de los materiales empleados. A partir del diagnóstico se establecieron recomendaciones para que casos como éste no se repitan.
Palabras clave:
colapso,
edifício Wilton Paes de Almeida,
diagnóstico
1. IntroduÇÃo
O estudo experimental de estruturas de concreto sob ação de altas temperaturas, incêndio, demanda recursos financeiros elevados e uma estrutura laboratorial instalada de grandes proporções, que permita ensaiar partes significativas de uma estrutura de concreto armado, com fundações, pilares, vigas e lajes, sem falar na interação sempre não desprezível com as alvenarias de vedação ou estruturais. Essa capacitação ainda não existe a nível mundial e na bibliografia tecno-científica, consta apenas o registro do experimento realizado no Cardington Laboratory (CHANA; PRICE, 2003).
Então, a Engenharia até hoje tem se contentado em extrapolar resultados obtidos de corpos de prova e pequenos elementos estruturais, isolados e na maioria das vezes sem carga, para com muita criatividade originar “modelos” que permitam prever o comportamento da estrutura real, frente a um incêndio.
Outra dificuldade significativa é o fato de que todos os poucos e limitados resultados de ensaio em laboratório, dependem de um “fogo” padrão, idealizado por uma curva tipo ISO 834 (1999), ou ASTM E119 (2019) que na maioria das vezes não corresponde ao incêndio real.
Considerando essas limitações até hoje intransponíveis, este artigo, assim como outros, por exemplo os artigos sobre o incêndio do edifício Windsor em Madrid, ocorrido em 2005, pesquisado por Alonso (2008) do IET (Instituto Eduardo Torroja del Cemento y del Concreto) e Calavera Ruiz et al. (2005) do INTEMAC (Instituto Técnico de Materiales y Construcciones), e o relatório sobre o colapso das Torres do World Trade Center, onde os estudos realizados culminaram na alteração das normas de projeto de edifícios altos (NIST, 2005), procuram estudar minuciosamente os casos de incêndios reais, na busca de tirar lições que muitas vezes são impossíveis a partir de ensaios laboratoriais caros e limitados.
No entender destes autores, a contribuição maior é reunir todas as informações possíveis de um evento desastroso como o colapso ocorrido em apenas 80 minutos, do Edifício Wilton Paes de Almeida, de forma a viabilizar um diagnóstico do ocorrido e com isso entender um pouco mais sobre a complexidade dos estudos de previsão do comportamento das estruturas de concreto armado sob fogo. Portanto, a contribuição científica fica bem caracterizada na pesquisa realizada, na busca de informações e dados que possam explicar esse precoce colapso.
2. HistÓrico
Iniciado nos primeiros anos da década de 1960, o Edifício Wilton Paes de Almeida teve sua obra concluída em 1968 pela empresa construtora Morse & Bierrenbach, para servir de sede ao conglomerado de empresas do político e empresário Sebastião Paes de Almeida. O edifício ocupava um terreno de 650 m² e sua área construída somava 12.000 m² (Aleteia, 2018).
Com características do típico edifício miesiano, contava com uma estrutura em concreto armado, com apenas 04 (quatro) pilares de concreto armado recuados com seção “H”, sustentando lajes de concreto nervuradas na região central e maciças em balanço na periferia (Figura 1). Na fachada, a espessura fina das lajes possibilitou o uso de uma caixilharia de alumínio igualmente delgada fixando as lâminas da “pele de vidro” de vidros verdes provenientes da casa Rayban.
![]() |
||||
| Figura 1. Vista do edifício Wilton Paes de Almeida e plantas dos pavimentos térreo e tipo (fonte: Revista Acrópole, 1965) | ||||
A principal empresa que ocupou o prédio no seu início foi a CVB (Companhia Comercial de Vidros do Brasil). Após um ano de atividade da CVB, o edifício contava com uma agência da Caixa Econômica Federal no pavimento térreo.
Considerado um marco do desenvolvimento por ser o primeiro edifício do país com fachada em pele de vidro, foi tombado em 1992 pelo Conselho Municipal de Preservação do Patrimônio Histórico, Cultural e Ambiental da Cidade de São Paulo (CONPRESP).
Posteriormente, o prédio receberia um posto do INSS e no início dos anos 2000 passou a abrigar a Polícia Federal. Durante esse período, não há registros de reformas significativas para manter o prédio em boas condições.
Anos mais tarde, os dois órgãos públicos deixaram o Wilton Paes de Almeida para que vazio ele fosse colocado à venda pela Secretaria do Patrimônio da União (SPU) do Ministério das Cidades, em fevereiro de 2015. Com a morosidade do processo e a ausência de interessados pela compra, o prédio foi invadido por pessoas pobres e sem moradia (News Rondonia, 2018).
Na madrugada do primeiro dia do mês de maio de 2018, um incêndio levou o edifício Wilton Paes de Almeida ao desabamento total. O incêndio teve início por volta das 01h30, e as chamas começaram por um provável curto circuito no quinto andar (G1, 2018).
Em pouco espaço de tempo, devido às características construtivas do prédio, o fogo se alastrou rapidamente pelos outros andares, tanto para cima (como esperado) quanto para baixo (não esperado), tomando conta de toda a estrutura, do térreo à cobertura. Por volta das 02h50, toda a edificação, ainda em chamas, desmoronou sobre si (Figura 2), causando a morte de 07 pessoas e muitos prejuízos nas construções vizinhas assim como enormes transtornos a famílias e ao trânsito e livre circulação de pessoas da região.
![]() |
||||
| Figura 2. Edifício Wilton Paes de Almeida após o seu colapso (fonte: acervo pessoal de Paulo Helene). | ||||
Com o colapso ocorrido no Largo do Paissandu, fica evidente as diversas perdas e riscos que a falta de manutenção e descaso com o patrimônio pode causar para a sociedade. Foram 07 pessoas que perderam suas vidas, cerca de 92 famílias que perderam o teto que os abrigava; 220 milhões de brasileiros que perderam um imóvel pertencente à União avaliado em mais de 7 milhões de dólares, e inúmeros outros transtornos a pessoas, que residem e trabalham nas propriedades ao redor do prédio que colapsou (Figura 3).
![]() |
||||
| Figura 3. Danos causados à Igreja Luterana, vizinha ao Ed. Wilton Paes de Almeida (fonte: acervo pessoal de Paulo Helene) | ||||
Dado o inusitado colapso desse edifício, a PMSP (Prefeitura do Município de São Paulo) através do Prof. Vitor Castex Aly, Secretário de Infraestrutura, e do Eng. Julio Timerman, presidente do IBRACON (Instituto Brasileiro do Concreto), firmaram um protocolo de cooperação técnica para viabilizar os estudos do caso, que ficou sob responsabilidade do Diretor Técnico do IBRACON, Prof. Paulo Helene.
3. SeguranÇa contra incêndio da edificaÇÃo
O colapso prematuro em apenas cerca de 80 minutos do edifício Wilton Paes de Almeida (WPA), surpreendeu a engenharia de estruturas de concreto. Desde a concepção deste sistema construtivo, patenteado por François Hennebique em 1892, que utilizou como “slogan” de sua propaganda “plus d’incendies désastreux”, ou seja, nunca mais incêndios desastrosos, é sabido que o concreto armado possui alta resistência estrutural, à ação do fogo e às intempéries. Um exemplo desta afirmação pode ser visto na Figura 4, que mostra a primeira edificação feita em 1900 com elementos estruturais em concreto armado, localizada na Rue Danton, 1, Paris - França, com o sistema Hennebique, que está em pleno uso até hoje.
![]() |
||||
| Figura 4. Primeiro edifício do mundo concebido com o sistema Hennebique (119 anos de bons serviços prestados à sociedade)(fonte: acervo pessoal de Paulo Helene). | ||||
De 1900 para cá houve grande evolução do concreto e com o advento dos concretos de alta resistência, acima de 100 MPa, as dúvidas sobre o bom comportamento do concreto sob fogo voltaram a existir. Estudos realizados por Britez (2013) com pilares de concreto de alta resistência (140 MPa) submetidos à elevadas temperaturas desmistificou as crenças e dúvidas da época de que o concreto de alta resistência “explodia” numa situação de incêndio, apresentando um efeito spalling acentuado, o que poderia levar ao colapso precoce das edificações concebidas com esse tipo de concreto.
Os pilares ensaiados, de concreto armado colorido, apresentaram ótimo desempenho, mantendo-se com suas arestas íntegras. A redução da resistência à compressão do concreto foi observada apenas nas regiões periféricas, cerca de 3 cm, mesmo com duração de exposição ao fogo de 180 minutos. O aço da armadura não perdeu resistência após resfriar-se e o teor de portlandita presente na amostra também indicou que a profundidade da ação nefasta do fogo foi bem superficial, cerca de 3 cm em 3 h de incêndio padrão.
Corroborando a afirmação de que o concreto apresenta excelente desempenho frente à ação do incêndio, incêndios anteriores como o do Edifício Andraus, Joelma e o Edifício Grande Avenida, todos em São Paulo e construídos na mesma década de 60, resistiram a mais de 4 h de fogo, sem colapsar e encontram-se atualmente em uso normal.
Esse colapso prematuro do WPA, deve ser considerado um fato grave, tanto do ponto de vista da evacuação dos edifícios pelos usuários, quanto do ponto de vista da segurança dos bombeiros nas suas atividades de resgate e combate ao fogo, além da segurança da vizinhança que não pode ser atingida pelos destroços, ou seja, prédios não podem colapsar tão rapidamente frente a um incêndio.
4. ReconstruÇÃo da estrutura
Sob um árduo trabalho de anamnese para obtenção de informações e projetos do edifício, foram encontrados nos registros da FAU.USP (Faculdade de Arquitetura da Universidade de São Paulo) algumas plantas arquitetônicas que descrevem a geometria dos pilares. Curiosa e surpreendentemente a seção exterior dos pilares era quadrada e constante com 85cm de lado, porém sua seção transversal resistente com forma da letra H, era escalonada e variável de andar a andar. Além disso, duas faces opostas definiam um “shaft” que era contínuo em toda a altura do pilar, do subsolo à cobertura, conforme apresentado na Figura 5. Esses “shafts” foram projetados e construídos para circulação do ar condicionado central.
![]() |
||||
| Figura 5. Escalonamento dos pilares (fonte: projeto arquitetônico executivo encontrado na biblioteca da FAU.USP) | ||||
Juntamente a essas plantas foram verificados nos arquivos da SPU (Secretaria do Patrimônio da União) diversos projetos de adequações feitas e propostas durante os anos de operação do edifício que foi sede da Polícia Federal, da Caixa Econômica e outras empresas. O engenheiro Leandro Coelho da SPU cedeu fotos de seu acervo pessoal tiradas ao longo dos anos, onde foi possível confirmar, com algum grau de precisão, a tipologia estrutural empregada no edifico Wilton Paes de Almeida (Figura 6).
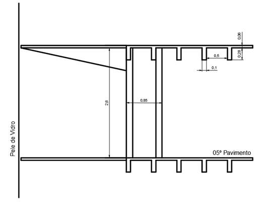
As lajes do edifício eram nervuradas e foram moldadas in loco com espessura da mesa superior de 6 cm (Figura 7). As nervuras tinham 10 cm de largura e 28 cm de altura até o fundo da laje ou mesa superior, e eram espaçadas a cada 50 cm. Dos pilares até o limite onde era instalada a pele de vidro, a laje era em balanço, com seção plena triangular que reduzia em função da distância ao pilar (Figura 8).
![]() |
||||
| Figura 7. Esquema da Laje-grelha (Fonte: FAU-USP) | ||||
![]() |
||||
| Figura 8. Corte da laje-grelha (Fonte: FAU-USP) | ||||
Assim, o sistema estrutural principal da estrutura, responsável por sua estabilidade era composto por pilares de concreto com seção tipo “H”, formando pórticos em apenas uma direção com vigas faixa, de mesma altura da laje, somado a paredes de concreto nas caixas de elevador e escada e adicionalmente uma grande parede reticulada ao fundo, composta por pilares, vigas e alvenaria, formando uma parede estrutural, como pode ser observado no modelo hipotético apresentado na Figura 9.
![]() |
||||
| Figura 9. Perspectivas frontal e posterior da estrutura do Ed. Wilton Paes de Almeida (fonte: interpretação dos projetos existentes na FAU-USP, SPU e Revista Acrópole). | ||||
5. Propriedades do concreto armado
A seguir serão apresentadas as atividades de coleta de amostras e o plano de ensaios estabelecido para conhecimento das propriedades físicas e mecânicas dos materiais utilizados.
5.1 Coleta das amostras
Foram selecionadas para a coleta duas grandes amostras da superestrutura colapsada do edifício para a realização de ensaios de caracterização, um trecho de laje e um trecho de pilar (Figura 10).
![]() |
||||
| Figura 10. Trechos de laje em balanço e pilar recolhidos dos escombros para ensaios (fonte: acervo pessoal de Paulo Helene) | ||||
5.2 Plano de Ensaios
Com relação às amostras de concreto, foram estabelecidas as seguintes atividades e ensaios específicos: levantamento geométrico; extração de testemunhos; caracterização mineralógica do agregado; apreciação petrográfica de minerais naturais; resistência à compressão; resistência à tração; esclerometria; ultrassom; módulo de elasticidade; ensaio de absorção de água; índice de vazios; massa específica; reconstituição de traço; difratometria de raios x; análise termodiferencial e termogravimetria e carbonatação.
Com relação às amostras de aço, foram estabelecidas as seguintes atividades e ensaios específicos: tipologia do aço empregado; composição química e metalúrgica; tração; dobramento; alongamento e metalografia.
5.3 Resultados - concreto
Os resultados dos ensaios realizados em concreto podem ser consultados na íntegra no parecer completo de diagnóstico elaborado pelos autores (Helene et. al., 2019), sendo aqui apresentadas somente a análise dos mesmos.
5.3.1 Esclerometria:
O ensaio de “avaliação da dureza superficial pelo esclerômetro de reflexão” foi realizado nos laboratórios da Universidade Presbiteriana Mackenzie (UPM), conforme a norma ABNT NBR 7584:2013. Foram realizados 224 impactos em 14 áreas de ensaio diferentes, metade delas nas superfícies expostas ao fogo, e a outra metade nas superfícies cortadas (núcleo), denominadas face exposta e núcleo, respectivamente.
Observou-se que houve uma significativa redução nos valores dos índices de reflexão obtidos das faces externas em relação aos valores obtidos do núcleo. Nas faces que foram atingidas pelas chamas, foi obtido um valor médio do índice de reflexão de 24% (corresponde à resistência à compressão cilíndrica de 16 ± 4,8 MPa), enquanto as medições realizadas no núcleo da amostra obtiveram um valor médio de 30% (corresponde à resistência à compressão cilíndrica de 26 ± 6,3 MPa).
5.3.2 Seção transversal do pilar
Após o corte diamantado da seção do pilar recolhido dos escombros, ficou evidente a disposição das armaduras dentro do pilar, sendo então possível realizar a reconstituição da seção transversal do trecho de pilar amostrado, conforme apresentado na Figura 11.
![]() |
||||
| Figura 11. Reconstituição da seção transversal do pilar recuperado dos escombros. | ||||
Com o conhecimento da seção transversal, disposição das barras de aço e seus respectivos diâmetros médios, foi possível estimar a taxa de armadura longitudinal em aproximadamente 3%, o que é convencional para edificações com múltiplos pavimentos.
O cobrimento das armaduras, importante verificação ao critério de durabilidade e de resistência ao fogo, variava de 1 cm a 5 cm na amostra coletada, o que, mais uma vez, evidenciava uma falta de controle e cuidado, típicos e comuns na época de execução do edifício.
Do ponto de vista da resistência ao fogo, o cobrimento (C1) que é utilizado para o cálculo da resistência da armadura ao gradiente térmico, vai da face externa do pilar até o centro da armadura principal, o que neste caso variou de 2,5 cm a 6,5 cm.
Ainda no trecho de pilar coletado, encontrou-se a intersecção pilar-laje, e sua armadura evidente. Portanto, foi possível determinar a disposição das armaduras na viga faixa que suportava a laje (Figura 12).
![]() |
||||
| Figura 12. Configuração idealizada da armadura na viga faixa. | ||||
5.3.3 Extração de testemunhos:
Os ensaios de extração foram realizados na UPM. Além dos ensaios de resistência à compressão uniaxial e de tração diametral, diversas análises químicas e físicas dependiam substancialmente da disponibilidade de amostras em proporções adequadas para a realização dos mesmos; assim, a extração de exemplares para a realização dos ensaios foi fundamental.
No total, foram realizadas 16 extrações, das quais apenas 06 (seis) puderam ser caracterizadas como testemunhos aproveitáveis para resistências mecânicas, em decorrência do grande número de fissuras internas, conforme se observa na Figura 13. Essas fissuras foram possivelmente causadas por mau adensamento do concreto no momento da construção do edifício e, mais provavelmente, também pelos esforços dinâmicos decorrentes da queda da superestrutura durante o colapso do edifício.
![]() |
||||
| Figura 13. Fissuras visíveis durante a extração e testemunho descomposto. (fonte: acervo pessoal de Paulo Helene) | ||||
5.3.4 Resistência à compressão
Os ensaios foram realizados nos laboratórios da UPM, seguindo o procedimento das normas ABNT NBR 5739 e ABNT NBR 7680, obtendo-se a resistência média à compressão de 21,8 MPa.
Os resultados obtidos são condizentes com os concretos produzidos na época, onde as resistências especificadas giravam em torno dos 135 kgf/cm² (13,5 MPa) a 180 kgf/cm² (18 MPa).
Para fins de avaliação estrutural admitiu-se que a resistência característica do concreto à compressão era de f ck = 15 MPa.
5.3.5 Resistência à Tração
Os ensaios de resistência à tração foram realizados nos laboratórios da UPM, seguindo o procedimento da norma ABNT NBR 7222, obtendo-se o valor médio de 2,1 MPa.
O resultado obtido corresponde a aproximadamente 10% do valor obtido para a resistência à compressão, o que é totalmente satisfatório, coerente e esperado para concretos daquela época, em São Paulo.
5.3.6 Ultrassom e Módulo de elasticidade
O ensaio de determinação da velocidade ultrassônica foi realizado nos laboratórios da PhD Engenharia, para a determinação do módulo de elasticidade dinâmico, seguindo o procedimento da norma ABNT NBR 8802, obtendo-se uma velocidade média de propagação de ondas de 3707 m/s.
O ensaio de Determinação do Módulo de Elasticidade Dinâmico por Estímulo de Impacto foi, também, realizado na PhD, seguindo o procedimento da norma ASTM C215, onde foram obtidos os valores de 19,6 GPa (longitudinal) e 12,3 GPa (transversal).
Com base na dissertação de mestrado Bilesky (2016), foi possível estimar o módulo de elasticidade estático, convencional, variando numa faixa de 20 GPa a 26 GPa, ou seja, perfeitamente compatível para o concreto em questão.
5.3.7 Ensaio de absorção de água, índices de vazios e massa específica
Os ensaios de determinação de absorção de água, índice de vazios e massa específica foram realizados seguindo o procedimento da norma ABNT NBR 9778 e realizados nos laboratórios da UPM. As amostras foram retiradas do núcleo do pilar.
Obtiveram-se os seguintes resultados médios:
Absorção de água → 6,52%, índice de vazios → 14,75% e massa específica → 2.260 kg/m³
Conclui-se que os resultados obtidos são condizentes à qualidade de um concreto da ordem de f ck = 15 MPa.
5.3.8 Reconstituição de traço
O ensaio para a reconstituição de traço foi realizado no laboratório da Associação Brasileira de Cimento Portland (ABCP), seguindo o procedimento da norma interna ABCP PO-GT 3016.
Para os cálculos de proporcionamento em massa foi adotado o valor de óxidos de cálcio igual a 60%. Não foi levada em conta a eventual presença de materiais calcários ligados aos agregados graúdos e miúdos.
Os traços de concreto encontrados nos ensaios foram de 1:5,9 nos pilares e de 1:6,2 nas lajes, em massa seca de cimento/agregados e podem ser considerados compatíveis com a época, correspondendo a um consumo de cimento por metro cúbico em média de 309 kg/m³, com relação água/cimento da ordem de 0,65.
Os resultados obtidos são adequados à classe de agressividade na qual a estrutura estava inserida (classe II da ABNT NBR 12655:2015) e representam concretos usuais à época.
5.3.9 Difratometria de raios x, termodiferencial e termogravimetria
Os ensaios de difratometria de raios x, análise termodiferencial e termogravimetria foram realizados no laboratório da ABCP, seguindo o procedimento da norma interna ABCP PO-GT 5042. Estes ensaios objetivaram a identificação das fases cristalinas que compõe as amostras do concreto submetido a altas temperaturas, que foram analisadas no difratômetro de raios X, além de reconhecer, através de termogramas, a presença de picos referentes aos hidratados de cimento, ao hidróxido de cálcio e ao carbonato de cálcio, constituintes da pasta hidratada, além daqueles relativos ao quartzo presente no agregado miúdo. A partir da identificação da presença ou ausência de certos compostos mineralógicos, torna-se possível avaliar a temperatura atingida por um elemento estrutural de concreto, em diferentes profundidades, num episódio de incêndio. Os resultados dessas análises podem ser consultados nas tabelas 1 e 2.
| Tabela 1. Compostos mineralógicos das amostras de concreto. | ||||||||||
| Minerais | Quimismo Aproximado | Distância interplanar principal (Å) | Frequência relativa | |||||||
|---|---|---|---|---|---|---|---|---|---|---|
| (topo) | b (meio) | c (base) | d (topo) | e (meio) | f (base) | |||||
| Feldspato | (Na0,5-0,3, Ca0,5-0,7) Al (Al0,5-0,7, Si0,5-0,3) Si2O8 | 3,20 | * | * | * | ** | - | ** | ||
| Mica | KAl2(AlSi3O10) (OH)8 | 9,99 | ** | * | ** | ** | ** | *** | ||
| Quartzo | SiO2 | 3,33 | **** | ** | *** | **** | ** | *** | ||
| Calcita | CaCO3 | 3,03 | ** | * | * | * | * | * | ||
| Portlandita | Ca(OH)2 | 4,90 | *** | **** | **** | ** | **** | **** | ||
| Simbologia | - = não detectado | ** = pouco frequente | ||||||||
| tr = traços | *** = frequente | |||||||||
| * = presente | **** = muito frequente | |||||||||
| Nota: | A avaliação semiquantitativa (expressa em número de asteriscos) das fases está fundamentada na altura dos picos de difração, cuja intensidade é função do teor, da simetria e do grau de cristalinidade do constituinte | |||||||||
Tabela 2.
Resultados dos ensaios de Termodiferencial e Termogravimetria.
Identificação da amostra
Perda de Massa (%)
40º a 200°C
(Perda de água livre e/ou adsorvida e decomposição dos silicatos hidratados)
200º a 400°C
(Decomposição dos aluminatos hidratados)
400º a 500°C
[Decomposição do Ca(OH)2]
500º a 800°C
(Descarbonatação do CaCO3)
Ca(OH)2
CaCO3
214424
topo
4,59
2,03
1,32
10,34
5,4
23,5
meio
7,54
4,86
3,85
2,90
15,8
6,6
base
8,14
4,81
4,16
2,97
17,1
6,8
214425
topo
4,35
2,79
1,46
11,53
6,0
26,2
meio
8,38
5,45
4,18
4,31
17,1
9,8
base
6,42
4,00
2,84
3,81
11,7
8,7
Conforme observado nas tabelas 1 e 2, as amostras da superfície do pilar, na região do cobrimento, resultaram em teores de portlandita três vezes menor do que as amostras do núcleo, o que condiz com o aspecto friável encontrado na região do cobrimento in loco, sendo mais íntegro na região da armadura (núcleo do pilar).
Concluindo, esses ensaios permitem estimar que a temperatura alta atuou somente na superfície do concreto estrutural, cerca de menos de 1cm. Esta também pode ser uma das justificativas da integridade mecânica da armadura, ou seja, como estava com recobrimento superior a 1 cm, esta não foi atingida por altas temperaturas (abaixo de 573º C).
5.3.10 Apreciação petrográfica dos agregados
A microscopia estereoscópica dos agregados constituintes do concreto do Edifício Wilton Paes de Almeida foi realizada no laboratório da ABCP pelo geólogo Dr. Cláudio Sbrighi Neto seguindo o procedimento da norma ABCP PO-GT 3016 rev. 02.
Foram extraídas da amostra do pilar, 04 (quatro) frações em função da distância da amostra à superfície. Observou-se que o concreto analisado é composto por agregados do tipo brita e areia provenientes de britagem de rocha e areia de rio. As análises sugerem uma boa qualidade dos agregados. O agregado graúdo é proveniente de rocha ígnea, petrograficamente denominada biotita granito. Notou-se a presença, em menor quantidade, de uma rocha máfica, provavelmente oriunda de um veio dessa rocha cortando o maciço.
Do ponto de vista petrográfico, os agregados apresentam boas características para serem usados em concretos e não foi observada nenhuma feição causada por exposição prejudicial ao fogo. Por exemplo, não foi observada a presença de cristais fraturados de quartzo e fraturas nas suas interfaces cristalinas que são indicativas de transformações alotrópicas do quartzo. Essas transformações alotrópicas do quartzo alfa em quartzo beta ocorrem com o aumento de volume quando a temperatura teórica atinge 573°C, ou seja, essa pode ser uma evidência de que o concreto não foi submetido a temperaturas superiores a 570°C. Conclusão razoável porque o tempo de exposição ao fogo foi muito pequeno, da ordem de 1 h.
5.3.11 Medição de carbonatação
A determinação da profundidade de carbonatação foi analisada através de um indicador químico de pH à base de fenolftaleína. Foram escolhidas faces externas e, portanto, teoricamente, regiões expostas às chamas.
As medidas foram realizadas pela PhD Engenharia, obtendo-se para a camada de carbonatação nas regiões mais afetadas profundidades variando de 2,5 cm a 3,0 cm, que corroboram a hipótese de que elementos estruturais revestidos, como era o caso dos pilares deste edifício, apresentam uma durabilidade maior, pois o revestimento passa a funcionar como mais uma barreira contra a penetração da frente de carbonatação e do calor.
Considerando que se tratava de uma estrutura com cerca de 54 anos de idade, a profundidade de carbonatação encontrada demonstra concreto de qualidade e compatível com a época.
5.4 Resultados - aço
Os resultados dos ensaios realizados em aço podem ser consultados na íntegra no documento elaborado pela equipe técnica da ArcelorMittal (Anexo I do parecer completo elaborado por Helene et. al. 2019), sendo aqui apresentadas somente um resumo dos mesmos.
5.4.1 Tipologia do Aço empregado
O aço empregado na armadura do WPA era de dois tipos, e foram nomeados de entalhado e liso, em função da sua conformação superficial. Devido ao formato original, as barras “entalhadas” com depressões apresentadas de maneira uniformemente ordenadas variam sua angulação em 90°, conforme se observa na Figura 14.
![]() |
||||
| Figura 14. Classificação das amostras de aço de acordo com sua bitola (fonte: Arcellor Mittal) | ||||
Após pesquisas e contribuições do Prof. Dr. Eduardo Thomaz, acredita-se que as barras de aço para concreto armado foram fabricadas pela empresa Peristahl S.A., na época atuando no mercado brasileiro. Estas barras são encruadas a frio, por mordedura em duas direções normais e ortogonais, e no caso apresentaram os seguintes diâmetros: 8, 10, 16, 20 e 22mm.
5.4.2 Composição química
Compararam-se as amostras do edifício com os atuais parâmetros para cada elemento químico presente, e os limites estipulados pela ABNT NBR 8965, os quais, para os componentes presentes na norma (valores máximos: C = 0,29; Mn = 0,91; Si = 0,41; P = 0,14; S = 0,07 e Ceq = 0,47), se apresentaram em sua maioria inferiores aos limites máximos estipulados (0,38, 1,56, 0,55, 0,058, 0,058 e 0,59, respectivamente), estando, portanto, adequadas aos parâmetros de soldabilidade, ductilidade e resistência requeridos para uso em concreto armado.
5.4.3 Tração / Alongamento
Todas as amostras foram ensaiadas para avaliar a resistência à tração (f st variando de 470MPa a 760MPa; f yk variando de 320MPa a 640MPa; alongamento variando de 3% a 35% e todas apresentaram ruptura dúctil). Comparando com a normalização atual, da ABNT NBR 7480, pode-se inferir que essa armadura pode ser considerada como aço da categoria CA 60.
5.4.4 Metalografia
As análises de metalografia realizadas com diferentes ampliações mostraram que as amostras de barras longitudinais entalhadas com bitolas de 22, 20, e 16 mm correspondem ao aço CA 60 e as barras transversais lisas com bitola de 10 mm e as barras complementares lisas com bitola de 8 mm correspondem ao aço CA 37. Um exemplo de análise metalográfica pode ser observado na Figura 15.
![]() |
||||
| Figura 15. Superfície da amostra de barra de aço com 22mm de diâmetro, 200x ampliada | ||||
6. ConsideraÇÕes finais
Com base no extenso programa de ensaios realizado, nas diversas e até contraditórias fontes de informação disponíveis, e nas simulações do modelo estrutural realizadas, pode-se concluir que:
Concluindo, o diagnóstico mostrou que a partir de um “projeto estrutural hipotético”, porque o projeto estrutural original não foi encontrado, foi possível explicar o colapso por um efeito de torção gerado pelas altas temperaturas. Sendo um edifício com estrutura assimétrica as deformações térmicas induziram tensão de torção muito acima da resistência da estrutura.
Como recomendações finais, destaca-se:
Nos edifícios existentes, que são milhares na cidade de São Paulo, exigir através do Corpo de Bombeiros a Proteção Ativa e Passiva, com treinamento a Síndicos e Condomínios Comerciais e Residenciais pois caso sejam vítimas de um incêndio incontrolável, apresentam elevado risco de colapso, similar ao WPA. Nos edifícios existentes e com fachada de vidro, que também são centenas na cidade de São Paulo, exigir através da Prefeitura, a construção de compartimentação mínima entre edifícios geminados e entre andares de 1,2 m com material isolante e incombustível.
7. Agradecimentos
Os autores reconhecem e agradecem às seguintes empresas e entidades: ArcelorMittal, Associação Brasileira de Cimento Portland (ABCP), Associação Brasileira de Engenharia e Consultoria Estrutural (ABECE), Cooperativa de Serviços e Pesquisas Tecnológicas e Industriais (CPTI), Corpo de Bombeiros da Polícia Militar do Estado de São Paulo (CBPMESP), Demolidora Santos Filho, Engefuro, Escola Politécnica da Universidade de São Paulo (EPUSP), Instituto de Pesquisas Tecnológicas (IPT), PhD Engenharia, Prefeitura Municipal de São Paulo (PMSP), São Paulo Obras (SPObras), São Paulo Urbanismo (SPU), Secretaria Municipal de Infraestrutura Urbana e Obras (SIURB), Secretaria do Patrimônio da União (SPU), Superintendência da Polícia Técnico-Científica (SPTC), Universidade do Vale do Rio dos Sinos (UNISINOS), Universidade Federal de Goiás (UFG), Universidade Federal de Santa Maria (UFSM) e Universidade Presbiteriana Mackenzie (UPM).
ReferÊncias
Alonso, C. (2008), Assessment of post-fire reinforced concrete structures: Determination of depth of temperature penetration and associated damage. Concrete Repair, Rehabilitation and Retrofitting II - Alexander et al (eds)© 2009 Taylor & Francis Group, London, ISBN 978-0-415-46850-3.
Aleteia (1992), “A trajetória do prédio que desabou no centro de São Paulo”. 28/05/2018. Disponível em: https://pt.aleteia.org/2018/05/02/a-trajetoria-do-predio-que-desabou-no-centro-de-sao-paulo/ , acesso em 08/03/2019.
Andrade, C. (1992), Manual para diagnóstico de obras por corrosão de armaduras. PINI, 104p
American Society of Test Materials. (2000), ASTM E119: standard methods of fire test of building construction and materials: fire and flammability standards, test method. West Conshohocken, PA.
Bilesky, P. (2016), Contribuição aos estudos do módulo de elasticidade do concreto. Dissertação. IPT Instituto de Pesquisas Tecnológicas, 298 p. Orientador: Paulo Helene.
Britez, C., Castro-Borges, P., Berto, A., Helene, P. (2013), Experimental evaluation of colored HSC column in fire conditions. Revista ALCONPAT, CONPAT, vol. 3 nº 1, p. 39-54, DOI: 10.21041/ra.v3i1.42
Calavera Ruiz, J. et. al. (2005), Comportamiento de la estrutura del edifício Windsor de Madrid frente al incêndio sufrido. Ingenieria Estructural, n. 37, p. 27-39.
Chana, P., Price, B. (2003), The Cardington fire test. Concrete (London), v.37, n.1, p. 28-33.
G1 (2018), “Incêndio em prédio de SP foi causado por curto-circuito em tomada no 5º andar, diz secretário”. 03/05/2018. Disponível em: https://g1.globo.com/sp/sao-paulo/noticia/incendio-em-predio-de-sp-foi-causado-por-curto-circuito-em-tomada-no-5-andar-diz-testemunha.ghtml, acesso em 20/03/2019
Helene P., et. al. (2019), Edifício Wilton Paes de Almeida. Histórico, anamnese, estudos, ensaios e análises da estrutura de concreto armado do edifício Wilton Paes de Almeida, que sofreu incêndio e colapso no dia 1o de maio de 2018, sito a Rua Antônio de Godoy, 581, Largo do Paissandu, São Paulo, S. P. (2019). Recomendações Técnicas. Parecer Técnico PhD 324/2019. Abril, 2019. 100p. Disponível em www.phd.eng.br.
International Organization for Standardization. (1999). ISO 834: fire resistance tests: elements of building construction: part 1. General requirements. Geneva.
National Institute of Standards and Technology. (2005). Final report on the collapse of the World Trade Center Towers. NIST NCSTAR 1. September, 302p.
News Rondônia (2018). “A história do edifício Wilton Paes de Almeida no Largo do Paissandu”. 03/05/2018. Disponível em http://www.newsrondonia.com.br/noticias/a+historia+do+edificio+wilton+paes+de+almeida+no+largo+do+paissandu/110221. Acesso em 08/03/2019.
Revista Acrópole (2019). Ano 27 - N° 323, Nov. 1965. Disponível em: http://www.acropole.fau.usp.br/edicao/323/14 , acesso em 08/03/2019.
François Hennebique (2019). Disponível em: http://www.fr.wikipedia.org/wiki/Fran%C3%A7ois_Hennebique, em 08/03/2019.