
| Investigación Documental | https://doi.org/10.21041/ra.v10i1.438 |
Incendios en estructuras de concreto - Casos de estudio significativos ocurridos en São Paulo
Fires in concrete structures - Significant case studies in São Paulo
Incêndios em estruturas de concreto - Estudos de caso significativos em São Paulo
1 IPT - Instituto de Pesquisas Tecnológicas, Brasil.
* Autor de Contato: aberto@ipt.br
Recepción: 13 de septiembre de 2019.
Aceptación: 11 de noviembre de 2019.
Publicación: 30 de diciembre de 2019
| Citar como: Berto, A. F. (2020), "Incendios en estructuras de concreto – Casos de estudio significativos ocurridos en São Paulo", Revista ALCONPAT, 10 (1), pp. 132 – 146, DOI: https://doi.org/10.21041/ra.v10i1.438 |
RESUMEN
En este artículo se abordarán los aspectos normativos relacionados con la seguridad contra incendios y se presentarán estudios de casos de edificios en São Paulo que sufrieron la acción del fuego y sus consecuencias. La seguridad contra incendios debe considerarse desde la concepción del edificio, pasando por el diseño y la construcción, hasta la fase de operación y mantenimiento. En la fase de diseño, el tema debe considerarse especialmente, ya que establece la estructura básica de la seguridad contra incendios del edificio. Debe basarse en un conocimiento profundo de las relaciones que hay con las disposiciones que le dan al edificio niveles adecuados de seguridad contra incendios.
Palabras clave:
fuego,
diseño,
estructuras de hormigón
ABSTRACT
In this article, the normative aspects related to fire safety will be approached and case studies of buildings in São Paulo that suffered the fire action and its consequences will be presented. Fire safety must be considered from the conception and development of the preliminary design of the building, through the design and construction and into the operation and maintenance phase. In the design phase, the issue should be especially considered, as it establishes the basic structure of the building's fire safety. It must be based on a thorough knowledge of the relationships with the provisions that give the building adequate levels of fire safety.
Keywords:
fire,
design,
concrete structures
RESUMO
Neste artigo serão abordados os aspectos normativos com relação a segurança contra incêndio e apresentados estudos de casos de edifícios em São Paulo que sofreram a ação do incêndio e suas consequências. A segurança contra incêndio deve ser considerada desde a concepção e o desenvolvimento do anteprojeto do edifício, passando pelo projeto e construção e adentrando a fase de operação e manutenção. Na fase de projeto, a questão deve ser especialmente considerada, pois aí se estabelece a estrutura básica da segurança contra incêndio do edifício; ele deve ser elaborado a partir de um conhecimento aprofundado das relações que mantem com as disposições que conferem ao edifício, níveis adequados de segurança contra incêndio.
Palavras-chave:
incêndio,
projeto,
estruturas de concreto
1. IntroducciÓn
El fuego, al alcanzar la temperatura de inflamación generalizada a partir de su origen, promueve, debido a su severidad, el debilitamiento gradual de los elementos estructurales y asume, en condiciones críticas, la capacidad de inducir el colapso estructural del edificio. Esa capacidad aumenta en la medida que grandes partes de la estructura son afectadas por su acción, o sea, mientras el fuego se propaga a otros ambientes.
Debido a esto, los diseños de los elementos estructurales del edificio deben tener en cuenta necesariamente la resolución de la resistencia al fuego. Actualmente, en Brasil existen regulaciones y normativas sobre este tema, cuyo cumplimiento con el diseño y construcción de edificios es obligatorio. Como referencia regulatoria se puede citar el Decreto de Estado No. 63.911 / 2018 del Departamento de Bomberos del Estado de São Paulo, que incluye la Instrucción técnica Nº 08/2019 - Resistencia al fuego de los elementos de construcción e Instrucción técnica Nº 09 - Compartimentación horizontal y vertical.
El requisito de proporcionar elementos estructurales con resistencia al fuego está fuertemente vinculado a la compartimentación horizontal y vertical de los edificios. Las losas y las vigas asociadas siempre integran la compartimentación vertical y las paredes con función de compartimentación horizontal siempre tienen elementos estructurales, incorporados o no a la estructura principal del edificio.
Desde la perspectiva de la solución integral de seguridad contra incendios, la compartimentación vertical es un aspecto que definitivamente interfiere con la resolución de la resistencia al fuego de los elementos estructurales. Es muy complejo y no apropiado afirmar que el edificio no se arruinará si grandes porciones de la estructura en varios pisos del edificio están simultáneamente expuestas al fuego. Esa situación es abordada en este artículo teniendo como referencia algunos incendios históricos y de grandes proporciones ocurridos en la ciudad de São Paulo.
2. Tiempo requerido de resistência al fuego
El Decreto del Estado nº 63.911 / 2018 del Departamento de Bomberos del Estado de Sao Paulo, a través de la Instrucción Técnica No. 08/2019, establece las condiciones que deben cumplir los elementos estructurales y de partición de los edificios y define los tiempos requeridos de resistencia al fuego (TRRF) con el pretexto de que, en una situación de incendio, se evita el colapso estructural, permitiendo una evacuación segura de las personas y el acceso a las operaciones del cuerpo de bomberos. Este TRRF de elementos constructivos estructurales y compartimentación está condicionado a la ocupación y altura del edificio.
El TRRF es un parámetro de diseño y no representa la duración real del incendio, el tiempo de evacuación del edificio o incluso el tiempo de respuesta del Departamento de Bomberos para comenzar la lucha contra el incendio. El TRRF se establece empíricamente, teniendo en cuenta la probable gravedad del incendio, las dificultades para controlar el progreso del incendio y las consecuencias del colapso estructural causado por el incendio, ya sea en términos de riesgo para los equipos de combate o en ocurrencia de la ruina, considerando el creciente riesgo debido a la altura del edificio.
Tomando como ejemplo la clase de ocupación "edificios de oficinas", el Decreto Estatal N ° 63.911 / 2018 establece valores TRRF en el rango de 30 min a 180 min. Para edificios de una sola planta de hasta 6 m de altura requiere 30 min, más de 6 m hasta 23 m requiere 60 min, más de 23 m hasta 30 m requiere 90 min, más de 30 m hasta 120 m requiere 120 min, más de 120 m hasta 150 m requiere 150 min y más que 150 m até 250 m requiere 180 min.
Para los “edificios de oficinas”, la compartimentación vertical se requiere solo para edificios con más de 12 m de altura. A pesar de eso, para edificios de más de 12 m (generalmente con más de cinco pisos), este Decreto permite, con pequeñas restricciones, que dicha compartimentación se reemplace por un sistema automático de detección de incendios, sistemas de aspersores y sistema de control de humo. Valido eso para edificios con atrio de hasta 23 m de altura. La compartimentación vertical por encima de los 90 m es obligatoria y debe ir acompañada de sistemas de detección, aspersores y control de humo.
Es importante destacar que la detección automática de incendios y los sistemas de aspersores ya son obligatorios, respectivamente, para alturas superiores a 12 m y 30 m, incluso cuando hay la compartimentación vertical, o sea, no representa ningún beneficio adicional en términos de seguridad contra incendios que permita eliminar la compartimentación vertical.
Se pueden considerar los valores TRRF propuestos y las cargas de incendio típicas para edificios de oficinas de hasta 23 m de altura (con carga térmica de 700 MJ / m², de acuerdo con el Decreto de Estado No. 63.911 / 2018 del Departamento de Bomberos del Estado de São Paulo), que 60 minutos es el valor básico requerido para que la estructura resista la acción del fuego. Hay que ser considerado que tales agravaciones no tienen en cuenta el riesgo de que porciones de la estructura asociadas con pavimentos posteriores se sometan simultáneamente a incendios de gravedad compatibles con el TRRF de 60 minutos, que, en definitiva, ya representa una acción muy severa en la estructura.
El Decreto Estatal N ° 63.911/2018 del Departamento de Bomberos del Estado de São Paulo otorga beneficios de aliviar los requisitos relativos a TRRF. Permite una reducción del TRRF en 30 minutos a través de un cálculo de tiempo equivalente, que tiene en cuenta (entre otros factores) la existencia de un sistema activo de protección contra incendio, de aspersores y un sistema automático de detección de incendios (y no tiene en cuenta la existencia de compartimentación verticales y horizontales). En muchas situaciones consideradas, estas medidas de protección activas son obligatorias o ya se han tenido en cuenta para eliminar la necesidad de compartimentación vertical y compartimentación horizontal. En el caso de los edificios de oficinas, como ejemplo, se acepta el tiempo equivalente TRRF de 30 min para edificios de hasta 23 m de altura. La desaceleración otorgada no es razonable desde el punto de vista del riesgo de colapso estructural en una situación de incendio, o sea, es una temeridad.
El enfoque descrito aquí se repite para prácticamente todos los demás tipos de ocupación. Destacamos aquí el caso de los edificios de oficinas debido a las tragedias ocurridas en Brasil que involucran estos edificios y las ruinas que ya han ocurrido en sus estructuras de hormigón.
3. Abordage sistÊmica de la seguridad contra incendio
La falta de consistencia que tiene la regulación, vigente en Brasil, en relación con los problemas que afectan la estructura de los edificios en una situación de incendio, da como resultado la posibilidad de condiciones de riesgo que darán lugar a la ocurrencia de grandes tragedias. Esta regulación carece, en relación con el tema de la resistencia al fuego de las estructuras, el sentido sistémico, que es un tema esencial para hacer posible, en vista de la complejidad de resolver el problema de seguridad contra incendios, adoptar un enfoque que conduzca a soluciones seguras.
Este enfoque comienza en el proyecto y se extiende a lo largo de la vida útil del edificio, considerando la subdivisión del problema general en problemas parciales, que aborda la complejidad de los riesgos, teniendo en cuenta los objetivos establecidos. Tal enfoque debe permitir que cada uno de estos problemas parciales se resuelva de manera independiente, asegurando que mantengan suficiente interacción y sinergia para establecer adecuadamente la solución general de seguridad contra incendios. Un ejemplo de esta subdivisión se presenta a seguir e incluye ocho elementos:
Cada uno de estos elementos, excepto el primero, se compone de acciones de protección, o sea, medidas de protección contra incendios, que se dividen en activas y pasivas. Los primeros, que son más familiares en Brasil, corresponden a la construcción de sistemas de protección contra incendios, incluidos hidrantes, aspersores, detección y alarma, etc. Las acciones pasivas, que constituyen la parte de protección contra incendios asociada con el mayor número de elementos del enfoque sistémico mencionado, incluyen el control de las características de reacción al fuego de los materiales utilizados en los edificios, la compartimentación horizontal y vertical, resistencia al fuego de elementos estructurales, etc. y condicionan, especialmente, las soluciones de los elementos: abandono seguro del edificio; limitación de la aparición de inflamación generalizada; limitación de la propagación del fuego dentro del edificio; precaución contra la propagación del fuego a edificios adyacentes; precaución contra el colapso estructural; y facilitación de operaciones de combate y rescate.
Preservar la estabilidad estructural del edificio debe ser uno de los objetivos fundamentales de la seguridad contra incendio. Esto se puede lograr de manera más confiable si la solución de seguridad contra incendios se considera como un todo desde un enfoque sistémico.
Un principio de fuego que encuentre condiciones favorables en el edificio para crecer y alcanzar rápidamente la fase de inflamación generalizada difícilmente será controlado mediante el uso de sistemas de combate manual. El rápido crecimiento del fuego no dejará tiempo para la acción de la brigada y el medio ambiente se llenará de humo y calor, haciendo que la presencia humana sea inviable. Tal situación, no protegida por un sistema de combate automático (o en el caso de una falla del sistema), podría permitir que un incendio ocurriera completamente fuera de control en la medida en que afectaría ampliamente la estructura del edificio. Desde el punto de vista de la vida humana, las condiciones favorables para el crecimiento del incendio pueden establecer un tiempo insuficiente para el abandono seguro del edificio, sorprendiendo a las personas, que pueden verse afectadas por el humo y el calor que se desarrolla en el fuego en proporciones aterradoras cuando se alcanza una inflamación generalizada. Dos incendios importantes en edificios de oficinas en la ciudad de São Paulo, uno en 1972 del edificio Andraus y otro en 1974 del edificio Joelma, que juntos causaron más de 200 muertes, mostró de modo incontestable por lo que esta situación. En ambos casos, la rápida aparición de inflamación generalizada sorprendió a los ocupantes de los edificios.
Estos son solo dos ejemplos que justifican por completo la necesidad del enfoque sistémico de la seguridad contra incendios, que se caracteriza por la interacción de las soluciones de sus elementos para resolver el problema de seguridad en su conjunto en el edificio. En este sentido, se puede afirmar que la solución del elemento de precaución contra el colapso estructural, además de depender de cuestiones intrínsecas en la estructura en las fases de diseño, dimensionamiento y ejecución de la estructura, dependerá de factores extrínsecos asociados con otros elementos del sistema, como limitar la aparición de inflamación generalizada, extinción inicial del fuego, limitar la propagación del fuego dentro del edificio, precaución contra la propagación del fuego a edificios adyacentes y facilitar las operaciones de combate y rescate. Los casos de incendios presentados a seguir prueban estas afirmaciones.
4. Importancia de la compartimentacciÓn
La detección automática de incendios y el control de humos no juegan un papel directo en la contención de la propagación vertical del fuego. El sistema de aspersores, a su vez, puede hacer esto en la medida en que contenga el desarrollo de incendios en su lugar de origen. Si este sistema falla, o no pueda contar con las acciones de apoyo necesarias debido al combate manual, el fuego puede propagarse verticalmente en el edificio. En general, en Brasil, estos tres sistemas tienen baja confiabilidad debido a deficiencias de diseño, instalación, operación y mantenimiento (Berto et.al., 2018 y Berto et.al.2019). Ante esta situación, se puede considerar que olvidar de la compartimentación vertical en el diseño de edificios altos se convierte en una temeridad.
Si el edificio no está equipado con una división vertical adecuada, el Departamento de Bomberos tendrá muy poco tiempo y grandes dificultades para contener la propagación vertical al remojar y enfriar los pisos superiores cerca de las fachadas. Lo que agrava esta situación es que el Departamento de Bomberos de Brasil, en general, tarda en llegar a la escena del incendio. El tiempo de respuesta de la brigada de bomberos en la ciudad de São Paulo y en Brasil, entendido como el tiempo requerido para que la brigada de bomberos llegue a la escena del incendio y comience las operaciones de extinción de incendios, generalmente es muy alto. Las razones que se pueden enumerar para esto son: calles estrechas; gran volumen de tráfico; crecimiento de la ciudad no planificado (Kodur et.al., 2019).
Es necesario reconocer que la compartimentación vertical de los edificios altos encuentra una gran fragilidad en las fachadas. Esta situación se caracteriza por dos aspectos. El primero se refiere a las características de reacción al fuego de los materiales que componen la fachada. En São Paulo no hay reglas para evaluar el comportamiento del fuego de la fachada en su conjunto y las reglas para la selección de materiales de fachada en relación con las características de reacción al fuego son relativamente nuevas y incumplido sistemáticamente. Las fachadas en los altos edificios de oficinas, por ejemplo, a menudo están revestidas con paneles compuestos de aluminio, que se comportan de la misma manera que las de la fachada de la Torre Grenfell, en Inglaterra, donde el fuego se extendió verticalmente, matando a más de 70 personas. Las valuaciones de las características de reacción al fuego de una parte predominante de estos materiales utilizados en las fachadas de edificios de São Paulo fueron realizadas por el Laboratorio de Seguridad contra Incendios y Explosiones del Instituto de Investigación Tecnológica de São Paulo - IPT y demostró el bajo rendimiento y la capacidad de las soluciones de fachadas compuestas de estos materiales para incendiarse fácilmente y promover su propagación.
El segundo aspecto mencionado se caracteriza por la siguiente situación: el fuego, alcanzando inflamación generalizada en el entorno original, puede extenderse horizontalmente y dominar grandes áreas del piso, lo que aumenta el riesgo de propagación vertical a través de la fachada, ya que una gran parte de la fachada puede estar sujeta a un intenso intercambio de calor por convección que puede determinar la propagación del fuego a pisos superiores. Esta condición se puede cumplir más fácilmente en edificios de oficinas, que generalmente cuentan con un plan de espacio abierto. Incluso si hay separaciones verticales entre las aberturas consecutivas del piso generalmente compuestas por la combinación de la viga del borde y el alféizar, la ausencia de acción de combate al enfriar la fachada sobre el piso del fuego puede ser crucial.
En el sentido indicado anteriormente y también debido a la posibilidad de que una gran parte de la estructura sea atacada simultáneamente por un incendio que domina todo el piso del edificio, la compartimentación horizontal también juega un papel muy importante para el desempeño de la estructura. Si la compartimentación vertical ya está mal abordada en la regulación, la compartimentación horizontal lo es aún más. Recordando el caso de los edificios de oficinas, los edificios de hasta 12 m de altura pueden reemplazar la compartimentación horizontal por la disposición del sistema de aspersores; de más de 12 m a 30 m de altura, el reemplazo debe agregar el sistema automático de detección de incendios (aunque el sistema de detección ya es obligatorio para edificios de más de 12m de altura). Apenas por encima de los 30 m de altura, estos dos sistemas activos de protección contra incendios no pueden reemplazar la compartimentación horizontal. A partir de esta altura el sistema de aspersores pasa a ser requerido. A pesar de eso, el área de compartimentación horizontal admitida es de 2.000 m². Sucede que los sistemas de detección automática son obligatorios para alturas superiores a 12 m, incluso si se ha adoptado la compartimentación horizontal, lo que no representa ningún beneficio adicional para estas situaciones.
No se puede dejar de mencionar que, de acuerdo con el Decreto de Estado No. 63.911/2018 del Departamento de Bomberos del Estado de São Paulo, cuando se requiera la división vertical, se permitirá, en pisos sobre el suelo, la interconexión de hasta tres pisos consecutivos a través de atrios, escaleras, rampas de tráfico o escaleras mecánicas, desde que la suma de áreas de estos pisos no exceda los valores establecidos para la compartimentación de áreas. Puede verse así, otra debilidad que amenaza el desempeño de la construcción de estructuras en una situación de incendio.
El escenario presentado aquí determina que las estructuras de concreto de los edificios, mismo si fueron diseñados para cumplir con el TRRF, considerando el dimensionamiento de los miembros estructurales de forma aislada, de acuerdo con la norma brasileña ABNT NBR 15200: 2012 - El diseño de estructuras de concreto en una situación de incendio, puede arruinarse cuando porciones considerables del conjunto se ven afectadas por el intenso calor del incendio.
Las regulaciones de seguridad contra incendios surgieron en la ciudad de São Paulo en 1974, pocos días después del gran incendio en el edificio Joelma, donde murieron 179 personas. Ya se estaba preparando después del incendio en el edificio Andraus, con la expectativa de que se incorporará a la próxima revisión del Código de Obras del Municipio. La tragedia del edificio Joelma condujo a la publicación de normas que se habían desarrollado en forma de un Decreto municipal, proponiendo que se observaron en el diseño, construcción y uso de edificios. La primera regulación consistente del Departamento de Bomberos del Estado de São Paulo se publicó solo nueve años después, o sea, en 1983.
Los diseños de edificios preparados antes de estas fechas no estaban obligados a cumplir con ninguna norma de seguridad contra incendios. Los edificios antiguos en São Paulo, o sea, aquellos diseñados antes de la validez de los Decretos mencionados, generalmente no incorporaron medidas de protección contra incendios. A pesar de esto, desde el momento en que se estableció la necesidad de obtener el Informe de inspección del departamento de bomberos - AVCB (documento emitido por el Departamento de Bomberos que certifica que, durante la encuesta, el edificio tenía las condiciones de seguridad contra incendios previstas por la ley, estableciendo un período de revalidación), el Departamento de Bomberos del Estado de São Paulo ha creado reglas para su adaptación, de manera que deben incorporar al menos un conjunto básico de medidas de protección contra incendios.
Estas normativas están actualmente consolidadas en las reglamentaciones del Departamento de Bomberos actualmente vigentes, o sea, el Decreto estatal n. ° 63.911/2018, titulado Adaptación a las reglamentaciones de seguridad contra incendios - Edificios Existentes. Los edificios antiguos, en virtud del Decreto, deben regularizarse con el Departamento de Bomberos mediante la obtención del AVCB, o sea, deben contar con medidas básicas de protección contra incendios, que corresponden a: extintores de incendios; iluminación de emergencia; señalización de emergencia; alarma de incendio; instalaciones eléctricas de acuerdo con normas técnicas; cuerpo de Bomberos; hidrantes; salida de emergencia; pozos y conductos de instalaciones sellados para edificios con más de 12 m. Tenga en cuenta que no se incluyen como básicos los requisitos de compartimentación horizontal y vertical y la resistencia al fuego de la estructura.
5. Estructuras de concreto en situacciòn de incendio
La ignorancia de muchos diseñadores especificidades estructurales asociadas con el tema de la seguridad contra incendios, especialmente la capacidad de los incendios de causar daños severos a las estructuras de hormigón, asociado con el hecho de que los procesos de inspección no incluyen la verificación del dimensionamiento de las estructuras en situación de incendio, conduce al incumplimiento de las regulaciones y normas que imponen una resolución obligatoria esta cuestión. Agregue a esto la sensación, a menudo determinante, de que el diseño de estructuras de concreto en una situación de incendio es una penalización innecesaria, ya que conduce a la adopción de las secciones más anchas y más altas capas de refuerzo longitudinal.
De hecho, la necesidad de adoptar secciones y recubrimientos más anchos se aplica en algunas situaciones, lo cual es evidente cuando se adopta el método de dimensionamiento tabular incluido en la norma ABNT NBR 15200:2012 y se busca alcanzar valores de TRRF superiores a 60 min. Dicho método se basa en tablas de diseño derivadas de resultados de pruebas de resistencia al fuego e incorpora cuestiones tales como: preservación de un núcleo resistente de hormigón; preservación de temperaturas de refuerzo adecuadas y condiciones aceptables de adherencia acero-hormigón. Resulta que la preservación de la estabilidad de las estructuras de hormigón en caso de incendio, va mucho más allá de lo que predice el método tabular debido a otros aspectos importantes interfieren en el comportamiento de las estructuras de hormigón, a saber: el sistema estático de la estructura en su conjunto; las principales tensiones que surgen en la estructura en el fuego causadas por la expansión térmica de las partes calientes de la estructura; y el astillamiento explosivo que el hormigón puede sufrir en una situación de incendio.
Con respecto a los esfuerzos de expansión, ABNT NBR 15200:2012 propone textualmente lo siguiente: “El calor transmitido a la estructura en este intervalo de tiempo (TRRF) genera en cada elemento estructural, en función de su forma y exposición al fuego, una cierta distribución de temperatura. Este proceso reduce la resistencia de los materiales y la capacidad de los elementos estructurales, así como las fuerzas de tensión debido al alargamiento axial o gradientes térmicos. Al igual que con el calentamiento, la rigidez de las piezas disminuye enormemente y la adaptabilidad plástica aumenta proporcionalmente, las tensiones generadas por el calentamiento, por general, pueden despreciarse ".
No es difícil de entender, y los grandes incendios que ocurrieron en Brasil que afectaron a edificios con estructura de hormigón evidencian esta situación, que no produce esta pérdida de rigidez, indicada en la norma, de la estructura de hormigón en la región afectada por el incendio y mucho menos la estructura en su conjunto. Dentro de la sección de partes de hormigón, durante el incendio, una parte preponderante de la estructura se mantiene a temperaturas proporcionalmente bajas. A pesar de eso, la parte de la superficie de las partes alcanza altas temperaturas y determina, en promedio, considerando la sección completa y la longitud de las partes, temperaturas suficientes para causar una expansión térmica extremadamente mayor que cualquier adaptabilidad plástica de la estructura como un todo.
De hecho, la expansión térmica de los elementos estructurales, como vigas y columnas, sometidas en tres o cuatro lados a la acción del fuego, produce esfuerzos que la estructura difícilmente podrá absorber sin al menos causar daños locales graves (colapsos) a la estructura de hormigón. El problema de la expansión térmica, en relación con el colapso de la estructura, se acentúa en las situaciones presentadas a continuación y puede conducir a desastres:
Cuando hay más de una de estas condiciones coexisten la situación puede volverse crítica, y puede ocurrir la ruina total o parcial del edificio. Esto puede lograrse prematuramente en la situación de incendio, o sea, incluso antes de que los efectos del calor determinen el daño local que causará el colapso de los elementos estructurales directamente afectados por el incendio.
La situación parece empeorar cuando la estructura horizontal está compuesta de losas nervadas, que presentan en relación con las losas planas una mayor superficie de transferencia de calor. Una superficie de hormigón mucho más significativa y rígida alcanza altas temperaturas antes de que sufra daños mecánicos significativos, o sea, a la vez que puede transferir esfuerzos de expansión a los elementos estructurales a los que están unidos (vigas y columnas). Corresponden a fuerzas de corte para las cuales estos elementos estructurales no están preparados para resistir.
El hormigón expuesto al calor intenso en una situación de incendio sufre cambios fisicoquímicos que comprometen decisivamente sus propiedades mecánicas. El refuerzo en el interior de las piezas de hormigón calentadas gradualmente tiene su adherencia al hormigón comprometido y también sufre una reducción significativa del límite elástico. Aun así, el problema de la fragmentación de la superficie puede reducir la sección transversal de las piezas y, en consecuencia, su capacidad de carga, y puede exponer el refuerzo directamente a las altas temperaturas alcanzadas en un incendio. La mezcla de hormigón, incluyendo la relación agua-cemento y aditivos utilizados, son factores decisivos para la aparición de este fenómeno.
Algunas de estas situaciones se ilustran en las Figuras presentado a continuación, que corresponden a incendios importantes que ocurrieron en la región metropolitana de São Paulo y llevaron a tragedias que juntas causaron un gran número de muertes.
El caso del incendio del edificio Grande Avenida, que ocurrió en São Paulo en 1981, ilustrado en las Figuras 1, 2 y 3, que se desarrolló severamente en dos pisos consecutivos de su podio frontal, evidenció que los esfuerzos de expansión térmica de los elementos estructurales de concreto que componían las vigas y losas de estos pavimentos, encontraron en la torre la rigidez necesaria para dirigir el esfuerzo de expansión térmica a los pilares de gran sección en la parte frontal del podio, causando el colapso de los mismos.
El caso del incendio del edificio Wilton Paes de Almeida, que ocurrió en São Paulo en 2018, ilustrado en las Figuras 4, 5 y 6, que concomitantemente dominaron una decena de pisos, evidenció la coincidencia de dos factores dañinos que llevaron a la ruina total de su estructura de concreto solo 80 minutos después del inicio del incendio: los esfuerzos de expansión térmica de los elementos estructurales de concreto que formaban las vigas y losas de los pisos afectados por el incendio, encontró en el su lado compuesta de una pared estructural (hermanada con un gran bloque de construcción) la rigidez necesaria para dirigir el esfuerzo de expansión térmica a los pilares que componían la estructura del edificio, especialmente aquellos asociados con el núcleo de circulación central; La distribución asimétrica del conjunto de columnas determinó la dirección predominante de este esfuerzo hacia las columnas integradas con el núcleo central de circulación (Helene, 2018). Esta situación causó la ruina de estos pilares y, en consecuencia, causó el colapso de toda la estructura. Esta situación se agravó aún más por el diseño estructural imprudente de la estructura de hormigón en su conjunto, que actualmente no cumpliría con el estándar brasileño para dimensionar estructuras de hormigón.
El caso del incendio ilustrado en las Figuras 11 y 12 ocurrió en 1995 en la región metropolitana de São Paulo muestra la ruina de una gran estructura de hormigón prefabricado donde los esfuerzos de expansión de los elementos estructurales de hormigón desplazaron los soportes. La ausencia de solidaridad entre los elementos horizontales y verticales condujo a la ruina en gran medida de la estructura.
El caso de incendio más impresionante reportado aquí, debido a la gran área de construcción concomitantemente construida con fuego (más de 20,000 m²), que definió el colapso de parte de la estructura de concreto, ocurrió en São Paulo en 1987 y se ilustra en las Figuras 7, 8, 9, 10, 13, 14, 15, 16 y 17. Este caso se discute en la sección siguiente.
![]() |
||||
| Figura 1. Edificio Grande Avenida, destacando el podio frontal asociado con la torre de 22 pisos | ||||

Figura 2. Podio del edificio Grande Avenida, sometido a fuego en 14/02/1981

Figura 4. Edificio Wilton Paes de Almeida, situado en el centro de Sao Paulo

Figura 5. Edificio Wilton Paes de Almeida sometido a incendio en 01/05/2018

Figura 6. Plano esquemático del pavimento tipo Wilton Paes de Almeida

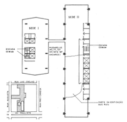
Figura 7. Edificios Sede I y Sede II de Companhia Energética de São Paulo - CESP

Figura 8. Edificios Sede I y Sede II da CESP sometidas a incendio en 21/05/1987

Figura 10.
Detalle de la ruina de la estructura de hormigón del edificio Sede II de CESP

Figura 11.
Ruina del edificio con estructura prefabricada sometido a fuego

Figura 12.
Desplazamiento de soporte de estructura prefabricada sometido a fuego
Todas estas condiciones deben considerarse y abordarse en el diseño de estructuras de hormigón, ya que el colapso de la estructura de hormigón no debe ocurrir en una situación de incendio, ya que sus consecuencias catastróficas, especialmente en el caso de edificios altos, son absolutamente inaceptables.
6. Estudio de caso de ruÍna de estructura de concreto
Un caso ejemplar de ruina de estructura de hormigón correspondió al edificio de la Sede II de CESP en un incendio que ocurrió en 21 de mayo de 1987. Este edificio era parte de un gran edificio, que comprende un bloque con pisos subterráneos, podio y dos torres. Los pisos subterráneos tenían tres niveles, dos de los cuales fueron utilizados para el estacionamiento de vehículos. El podio consistía en la planta baja y dos pisos más, que ocupaban toda el área del suelo. Encima de este podio había dos torres, llamadas Sede I y Sede II, que tenían, respectivamente, 19 y 21 pisos. Las dos torres tenían tamaños de piso estándar de aproximadamente 12m x 30m y 12m x 60m, respectivamente.
El techo del Edificio de la Sede I estaba compuesto de tableros aglomerados de fibra de celulosa y el revestimiento del Edificio de la Sede II consistía en placas de yeso. Sobre ambos estaban los encofrados de madera de las losas, que eran nervadas. Las fachadas de las dos torres estaban compuestas predominantemente de marcos de acristalamiento de metal.
El edificio de la sede I tenía dos escaleras no protegidas, una de las cuales llegaba hasta el octavo piso. El edificio de la Sede II tenía solo una escalera, que, también no estaba protegida.
El incendio comenzó en el 5° piso del edificio Sede I, en la red de iluminación eléctrica dispuesta sobre el techo combustible. El techo se encendió rápidamente y las llamas se extendieron por su superficie inferior. Partes encendidas del revestimiento dejaron caer los materiales combustibles contenidos en la oficina y los incendió. La inflamación generalizada en el 5° piso se alcanzó muy rápidamente.
El fuego se extendió entre los pisos del edificio Sede I con gran facilidad. Esto sucedió de dos maneras: a través del interior del edificio, a través de las escaleras; y el exterior del edificio a través de las ventanas y perfiles de aluminio. La propagación vertical del fuego fue tan rápida que todos los pisos del edificio desde el 5° piso coincidieron con la fase de ignición generalizada, lo que significa que ardieron intensamente al mismo tiempo.
Aunque la distancia entre las fachadas de los edificios de la Sede I y Sede II es de 9,5 m, el fuego se propagó entre ellos por radiación térmica. El incendio en el edificio de la Sede II comenzó de manera intensa y concomitante en varios pisos. El incendio no encontró obstáculos en los pavimentos para alcanzar toda el área de los pisos, ya que los pisos solo tenían subdivisiones frente al edificio del edificio Sede I, donde estaban las escaleras, los ascensores, las despensas y los baños.
Aproximadamente dos horas después de que el incendio se extendió al edificio de la Sede II, su parte central colapsó, como se muestra en la Figura 2. La estructura del edificio consistía en un conjunto de múltiples pórticos paralelos de hormigón armado moldeado in loco, cuyos elementos horizontales consistían en vigas en T, de sección grande y alta rigidez que abarcaba tramos de 8 m y 11 m, aproximadamente. La separación entre los pórticos era de, aproximadamente, 8 m. El bloqueo entre ellos fue promovido por las losas nervadas de los pisos.
El incendio, antes de la ruina del edificio de la Sede II, se desarrollaba con mayor intensidad en los pisos superior y la mitad de la altura del edificio. En estas regiones, los elementos verticales de los pórticos fueron sometidos a esfuerzos debido a la expansión térmica de las vigas T y sus materiales constituyentes fueron perdiendo gradualmente su resistencia mecánica a medida que se calentaban.
La ruina de la región central del edificio se debió al incendio que se estaba desarrollando a su altura media, como resultado de los esfuerzos de expansión introducidos por dos vigas T consecutivas, en los elementos verticales de sus respectivos pórticos. Estos dos pórticos consecutivos tenían elementos verticales en un lado del edificio, significativamente más rígidos, ya que sus secciones transversales eran más grandes y formaban las columnas que formaban el hueco del ascensor. Las partes menos rígidas de los dos pórticos recibieron mayores esfuerzos debido a estas dilataciones, regidas por la relación geométrica de las secciones de la columna a ambos lados de los pórticos, y sufrió cizallamiento severo, rompiendo.
Se adoptó el mismo tipo de diseño estructural para el edificio Sede I. A pesar de eso, los vanos superados por vigas que componían los múltiples pórticos eran significativamente más pequeños, alcanzando aproximadamente 4.5 m donde había una distinción entre las secciones de los elementos verticales del pórtico, y las vigas tenían secciones más pequeñas que las del edificio de la Sede II. Esta situación no se ha determinado la aparición de fuerzas de cizallamiento crítica en los elementos verticales de los pórticos.
Se encontró en el edificio Sede I, que los elementos estructurales horizontales (vigas y losas) presentaban dos problemas capaces de comprometer seriamente la estabilidad de la estructura en una situación de incendio. Uno de ellos estaba relacionado con recubrimientos de armadura, muy reducido en general, estar al lado de la superficie de hormigón en algunas regiones. El otro estaba relacionado con las secciones transversales reducidas de las vigas de losas nervadas, que eran insuficientes para garantizar una resistencia al fuego superior a 1 h. Como resultado, una parte significativa de los elementos estructurales horizontales sufrió una gran deformación.
Aunque solo una parte de la estructura del edificio de la Sede II fue al colapso, dividiéndola en dos, el resto de su estructura, así como la estructura de la Sede I, sufrieron daños muy graves, de manera que, después del incendio, se corría el riesgo inminente de colapso total de los dos edificios. Esta situación justificó la urgente necesidad de demolición de los dos edificios.
La fragilidad de la solución estructural de los dos edificios debido a la situación de incendio, asociada con la ausencia de compartimentación vertical, muestra claramente muestra cómo el sistema estático adoptado para la estructura de las dos torres era frágil. La ruina que ha ocurrido muestra que esta solución estructural, desde el punto de vista de la seguridad contra incendios, debe evitarse.
Parte de las situaciones relacionadas con las estructuras de los dos edificios que se informan aquí se muestran en las Figuras 9, 10, 13, 14, 15, 16 y 17. Está claro en relación con el edificio de la Sede II que los esfuerzos de expansión cisalharam las columnas de dos pórticos, causando el colapso de la parte central de la torre.
![]() |
||||
| Figura 13. Bloque afectado por incendios: podio y edificios Sede I y Sede II | ||||

Figura 16. Frente del edificio Sede II

Figura 17.
Estructura del edificio Sede I dañada por el fuego
7. Consideracciones finales
Los casos de colapso presentados afectaran edificios construidos cuando no había requisitos obligatorios de cumplimiento en Brasil para garantizar condiciones adecuadas de seguridad contra incendios. Actualmente existen regulaciones, como el Decreto del Departamento de Bomberos del Estado No. 63.911 / 2018, con detalles establecidos en la Instrucción Técnica No. 08/2019 - Resistencia al fuego de los elementos de construcción - que determina en la mayoría de las situaciones, como las de los edificios más grandes, que las estructuras de hormigón y cualquier otro tipo de material (acero, madera y mampostería estructural) están diseñados y ejecutados de tal manera que tener resistencia al fuego, es decir, para poder resistir la acción del fuego mientras se preserva la estabilidad estructural de los edificios.
A pesar de esto, la norma citada en este reglamento, relativa al diseño de estructuras de hormigón en situación de incendio, deben mejorarse con urgencia y los diseñadores deben ser conscientes de la importancia de dar a las estructuras la capacidad real de resistir la acción de un incendio mientras se preserva la estabilidad de los edificios.
La regulación y normativas citadas, que sirve como referencia a otras regulaciones existentes en Brasil, debe mejorarse y garantizar un enfoque consistente que evite que las estructuras de tamaño adecuado se vean afectadas por acciones extremadamente severas, representado, entre otras situaciones, por grandes porciones de la estructura expuesta, concomitantemente o sucesivamente, a la acción del fuego.
Referencias
Associação Brasileira de Normas Técnicas. (2012). ABNT NBR 15200: Projeto de estruturas de concreto em situação de incêndio.
Berto, A. F., Bottger, I. F., Paula, D. J. (2018), Segurança contra Incêndio? - ParteI. Revista Emergência. p. 46 - 55, 12 dez. 2018.
Berto, A. F., Bottger, I. F., Paula, D. J. (2019), Segurança contra Incêndio? - ParteII. Revista Emergência. p. 34 - 41, 10 jan. 2018.
Berto, A. F., Bottger, I. F., Paula, D. J. (2019), Segurança contra Incêndio? - ParteIII. Revista Emergência. p. 30 - 38, 19 fev. 2018.
Berto, A. F., Bottger, I. F., Paula, D. J. (2019), Segurança contra Incêndio? - ParteIV. Revista Emergência. p. 42 - 51, 18 mar. 2018.
Corpo de Bombeiros da PMESP. (2019). Instrução Técnica nº 08 - Resistência ao fogo dos elementos de construção.
Corpo de Bombeiros da PMESP. (2019). Instrução Técnica n º 09 - Compartimentação horizontal e compartimentação vertical.
Corpo de Bombeiros da PMESP. (2018). Decreto Estadual nº 63.911. 10 de dezembro
Helene et. al. (2019), Edifício Wilton Paes de Almeida. Histórico, anamnese, estudos, ensaios e análises da estrutura de concreto armado do edifício Wilton Paes de Almeida, que sofreu incêndio e colapso no dia 1o de maio de 2018, sito a Rua Antônio de Godoy, 581, Largo do Paissandu, São Paulo, SP. Recomendações Técnicas. Parecer Técnico PhD 324/2019. Abril. 100p. Disponível em www.phd.eng.br.
Kodur, V. R., Kumar, P., Rafi, M. M. (2019). Fire Hazard in Buildings: Review, Assessment and Strategies for Improving Fire Safety. PSU Research Review - Emerald PUBLISHING. https://doi.org/10.1108/PRR-12-2018-0033