
| Basic Research | https://doi.org/10.21041/ra.v14i1.714 |
Diagnóstico e projeto de reforço estrutural do Palácio Tampieri
Diagnosis and structural underpinning project of the Tampieri Palace
Diagnóstico y proyecto de recalce estructural del Palacio Tampieri
1 Facultad de Arquitectura, Universidad Nacional de Córdoba, Córdoba, Argentina.
2 Departamento de Construcciones Civiles, Facultad de Ciencias Exactas, Físicas y Naturales, Universidad Nacional de Córdoba, Córdoba, Argentina.
*Autor de Contato: arqzanni@gmail.com
Recebido: 07/11/2023
Revisado: 18/12/2023
Aceito: 27/12/2023
Publicado: 01/01/2024
| Citar como: Zanni, E., Capdevila, J. (2024), “Diagnosis and structural underpinning project of the Tampieri Palace”, Revista ALCONPAT, 14 (1), pp. 96 - 114, DOI: https://doi.org/10.21041/ra.v14i1.714 |
Resumo
Detalha-se o diagnóstico e reforço estrutural do Palácio Tampieri, no âmbito de um projeto de restauração integral. O edifício possui alto valor patrimonial, sendo um dos dois palácios existentes na Província de Córdoba, Argentina. Apresenta fraturas nas alvenarias estruturais, causadas por assentamentos diferenciais, uma vez que está fundamentado sobre solos colapsáveis afetados por variações cíclicas do lençol freático. A metodologia envolveu o levantamento das lesões existentes, a realização de sondagens e investigação técnica e histórica de sua construção para diagnosticar seu estado estrutural e construtivo. A intervenção corretiva foi dividida em duas etapas: A) estabilizar e consolidar as fundações do edifício, e B) reabilitar e restaurar fachadas e interiores. Conclui-se que as micro estacas cravadas constituem uma alternativa válida para o reforço de fundação de edifícios em solos saturados, com intervenções minimamente destrutivas.
Palavras-chave: patrimônio; restauração; assentamentos; recalque; reforço fundações.
1. INTRODUÇÃO
O Palácio Tampieri, localizado na cidade de San Francisco (a leste da província de Córdoba, Argentina), foi construído em um contexto histórico marcado pela significativa corrente migratória da Itália para a Argentina. Seu proprietário original, Ricardo Tampieri, um dos empresários mais importantes do país, ordenou a construção de sua residência ao lado da fábrica de massas que contribuiu para a sua fortuna (Figura 1). O edifício tem uma área coberta e semi-coberta de 1.517m² distribuídos em 3 níveis, conforme detalhado a seguir:
Área do Subsolo (SS): 545,98m²
Área do Térreo (PB): 545,98m² + 31,48m² semi-cobertos.
Área do 1º Andar (PA): 373,13 m²
Área da Sala de Máquinas (terraço): 20,70 m²
Figura 1. Vista exterior do palácio
2. TECNOLOGIA DE CONSTRUÇÃO
A tecnologia consiste em paredes estruturais de tijolos cerâmicos maciços com 0,60 m e 0,40 m de espessura em paredes externas e internas, respectivamente. Também existem divisórias não estruturais de 15 cm. As fundações são contínuas, formadas pelo alargamento das paredes de alvenaria para transferir ao solo cargas de contato compatíveis com sua capacidade de carga. A largura delas é de 80 e 60 cm, respectivamente, em um horizonte de assentamento de -4,50 m (-1,50 m abaixo do nível do piso do subsolo).
O estudo do solo destaca a presença, até uma profundidade de -10,00 m, de siltes e siltes argilosos de baixa resistência à penetração superficial e aumento da compacidade para profundidades superiores a -8,00 m, sugerindo um comportamento de potencial colapso por umedecimento sob carga, principalmente a profundidades de até 5 m ou 6 m. Também é importante mencionar que os mesmos estudos geotécnicos indicam a detecção de uma estrutura carbonatada com características de "tosca" distribuída de forma aleatória e não uniforme. Essa situação gera assentamentos diferenciais na estrutura devido aos diferentes comportamentos do solo de apoio em relação à elevação do lençol freático, que está incluída nos relatórios geotécnicos, variando entre -1,10 e -2,30 m, ultrapassando, no momento da intervenção, o nível de assentamento da estrutura de apoio, situação que persiste há duas décadas (Videla et al., 2015).
As lajes das coberturas são feitas com vigas metálicas IPN com abóbadas de tijolos e uma camada de concreto armado entre os pavimentos e o teto. Os forros originais são estruturados e consistem em folhas de metal expandido (em alguns locais, tábuas de madeira) e gesso espessado e revestido.
As esquadrias têm molduras e folhas de madeira e incluem persianas nas janelas e portas-janela.
Os revestimentos do piso variam de acordo com o ambiente, apresentando diferentes opções como pisos de parquet com molduras sobre ripas de madeira, mosaicos graníticos reconstituídos e lajotas calcárias. Em áreas específicas, há pisos de mármore.
O acabamento exterior é de reboco semelhante a pedra com chanfros e almofadados nos cantos. Possuem ornamentos, molduras e volutas decorativas sob as cornijas.
Os revestimentos interiores também são variados, desde gesso com molduras e painéis moldurados até detalhes de madeira e mármore em salões principais.
3. CARACTERIZAÇÃO DO SOLO
O perfil estratigráfico do solo revela as seguintes camadas:
4. DECLARAÇÕES DE PROTEÇÃO
O edifício está incorporado ao Patrimônio Cultural Provincial de acordo com o Decreto 49/94 (janeiro/1994), nos termos da Lei 5543, que o declara Monumento de Interesse Provincial.
Também possui Declaração de Interesse Municipal como Monumento Histórico-Cultural e Arquitetônico, de acordo com a Ordenança Municipal 6416/13 (dezembro/2013) da cidade de San Francisco.
O nível de proteção o classifica como Categoria 1: Edifício de Qualidade Singular (Proteção Integral).
5. METODOLOGIA DE TRABALHO
Foi realizado um levantamento arquitetônico e uma análise detalhada dos degradês em pisos e fachadas, apoiados por registros fotográficos de cada local. Também foram realizadas escavações nas fundações e várias prospecções para determinar a tecnologia de construção, assim como medições de conteúdo de umidade em paredes e coberturas, utilizando higrômetros de contato superficiais (eletrodos de 8 mm multicalibrados - para madeira, sólidos porosos - e sonda longa com eletrodos de 200 mm).
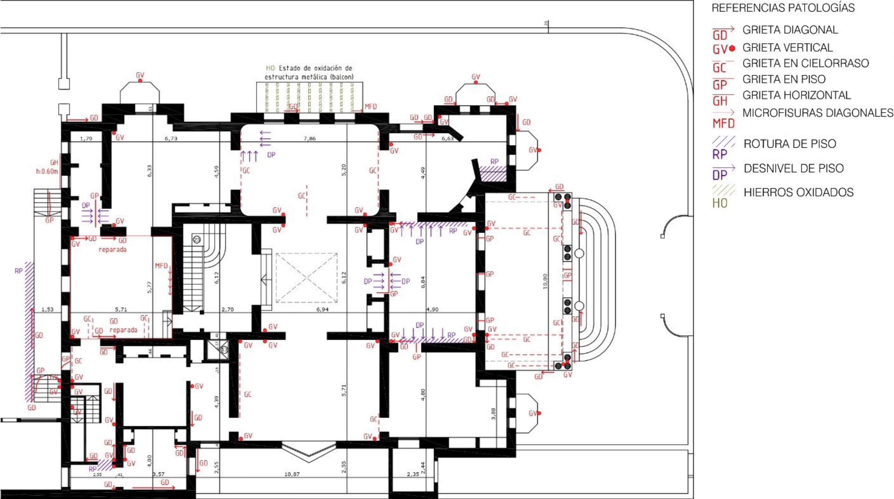
As Figuras 2 a 4 apresentam esquemas em planta e fachada dos levantamentos de manifestações patológicas realizados, cujo estudo e análise permitem inferir as prováveis causas que deram origem aos problemas. Por outro lado, a Figura 5 exibe um levantamento fotográfico dos degradês no palácio.
Figura 2. Análise de patologia em nível de subsolo.
Figura 3. Análise de patologia na planta baixa.
Figura 4. Análise de patologia nas faces Leste e Oeste do edifício.
Figura 5. Levantamento fotográfico dos degradês. 5.1) e 5.2): fissuras no revestimento inferior do balcão, devido à corrosão da estrutura de armadura interna. 5.3), 5.4) e 5.7): o deslocamento da estrutura metálica da entrada, devido a assentamentos diferenciais, causou fissuras de tração e estiramento nas junções com paredes estruturais, resultando na entrada de infiltrações de água e na consequente degradação do revestimento semelhante a pedra. 5.5) e 5.6): afundamentos diferenciais das colunas do terraço sobre a entrada, com inclinações nas linhas de molduras e ruptura de placas de revestimento, inclusive na escadaria.
Com base no levantamento e análise das fraturas existentes, foram diagnosticadas suas causas, chegando à conclusão de que se devem a assentamentos diferenciais da estrutura devido à deformação do solo de apoio, causada pela saturação dele. Os solos limosos no centro da Argentina possuem características granulométricas específicas, consistindo em uma fração de tamanho de areias e uma fração importante de tamanho de limos, argilas e carbonatos de cálcio. Geralmente, esses solos apresentam baixa plasticidade e camadas ou espessuras de estrato que variam regionalmente. Na área em estudo, é comum que, em profundidades variáveis entre 8 e 12 metros, apareçam camadas de limos com presença de nódulos isolados, com menor condutividade hidráulica que os limos superiores, fazendo com que a água infiltrada no solo tenda a acumular-se acima dessa camada. Regionalmente, observa-se uma inclinação escassa no terreno, característica dos depósitos eólicos, que origina a presença de depressões e áreas úmidas. Isso se soma aos valores crescentes de excedentes hídricos nos balanços, aumentando a frequência de anos com excessos desde a década de 70. Os balanços hídricos permitem verificar que o armazenamento desses excedentes, nesses sistemas de planície, resulta em um aumento significativo dos níveis freáticos (Gómez et al., 2006).
Os solos limosos apresentam uma estrutura macroporosa e sofrem grandes variações de volume, chamadas colapso, quando o conteúdo de umidade ou o estado tensional aumenta. Em geral, pode-se afirmar que o comportamento tenso deformacional do solo na região é altamente dependente do teor de umidade do solo, observando-se uma queda significativa do módulo elástico quando ocorre a saturação completa. Esse comportamento pode ser atribuído ao aumento do teor de umidade do solo, onde a hidratação das pontes de argila e os sais precipitados nos contatos entre partículas de maior tamanho causam o colapso da estrutura e o amolecimento do esqueleto do solo. Como resultado, esse enfraquecimento dos contatos entre partículas se manifesta, em uma escala macro, com um aumento nas deformações verticais do solo (mesmo sob carga constante) (Francisca, 2007). Diante desse panorama, as construções civis e obras de arquitetura apoiadas ou fundadas nessas terras sofrem danos significativos. As Figuras 6 a 9 mostram alguns dos danos estruturais detectados e levantados no Palácio Tampieri.
Figura 6. Os assentamentos diferenciais originaram esforços diagonais de tração nos muros, resultando no surgimento de fissuras parabólicas perpendiculares à diagonal tracionada.
Figura 7. Detalhe de fissuras com deslocamento entre fragmentos de muros.
Figura 8. a) Desvinculação de muros nos encontros de esquina, devido a deslocamentos e afundamentos diferenciais entre eles. b) Detalhe do desprendimento de ornamentos e volutas devido à deformação das cornijas, como resultado dos assentamentos. Esses elementos soltos representam risco de queda.
Figura 9. Deformação e ruptura da estrutura metálica da armação da cornija.
Com base no exposto, foram projetados e calculados os reforços correspondentes, optando pela tecnologia de micro estacas metálicas mononúcleo cravadas com injeção IGU (Injeção Global Unitária).
6. DETALHE DA INTERVENÇÃO
6.1. Generalidades
Com o objetivo de garantir a estabilidade do edifício diante dos assentamentos, foram projetados, calculados e executados 101 micro estacas cravadas, destinadas a transferir as cargas da construção para um estrato estável não colapsável (tosca localizada a -12 m do nível do terreno natural), diante do aumento da umidade no horizonte de fundação original (Cisneros et al., 2014). A capacidade de carga mínima garantida é de 20 toneladas para cada unidade, a fim de poder transferir as cargas transmitidas pelo muro mais carregado, com um coeficiente de segurança não inferior a dois.
A opção de execução de estacas escavadas mecanicamente e concretadas in loco foi descartada devido à impossibilidade de realizar a escavação dentro dos ambientes e ao risco inaceitável que representaria uma escavação manual, dadas as condições de saturação do solo e a eventual presença de cavidades desmoronáveis.
Essas micro estacas consistem em tubos de aço sem costura, de ligas especiais com tensões de ruptura por tração que duplicam os aços de construção tradicionais, chamados de Mannesmann (Figura 10). Eles têm 73 mm de diâmetro externo e são acoplados por solda a cada 3 metros, sendo cravados por percussão até atingir a resistência de rejeição do solo, que deve ser compatível com o horizonte de fundação previsto nos estudos geotécnicos anteriores. Esses elementos foram introduzidos de forma sub-vertical através da alvenaria de elevação, com um ângulo de ataque que permite que as microe stacas atravessem a base de apoio em seu terço médio. Dessa forma, evitou-se a necessidade de executar uma cabeça saliente para reforçar a parede em questão. A transferência de cargas da parede para a micro estaca é concretizada pela atrito desenvolvida entre os tijolos da alvenaria e o material que preenche o espaço entre a parede perfurada e o fuste de aço da micro estaca.
Figura 10. Detalhe dos tubos Manessmann com diâmetro de 73 mm. São visíveis o orifício para injeção e os suportes para cravação sem transmissão de vibrações ao solo circundante.
6.2. Proposta de recalque das paredes internas
A disposição das micro estacas para concretizar o reforço das paredes é realizada em três fileiras (Figura 11). A quantidade de micro estacas a ser utilizada é determinada de acordo com a carga que a parede recebe e a capacidade de carga da micro estaca. Na Tabela 1, são apresentados os parâmetros de cálculo das micro estacas que permitiram, em seguida, determinar a quantidade necessária para o reforço de cada parede.
Figura 11. Esquema de apoio de paredes internas em micro estacas inclinadas.
Tabela 1. Parâmetros de cálculo de cada micro estaca em contato com alvenaria.
| Material | Diâmetro [mm] |
Diâm. perfuração [mm] |
Longitude friccional [mm] |
Resistência friccional [kg/cm2] |
Capacidade Carga [tn] |
| Grouting | |||||
| Acero | 73 | 125 | 100 | 4 | 6,50 |
A localização dos elementos é detalhada no Plano de Planta do Subsolo (Figura 12). Primeiramente, antes de projetar o reforço, foi realizada a análise de carga da parede interna mais carregado, com o objetivo de projetá-lo de maneira ajustada, determinando a quantidade de micro estacas a ser distribuída sob cada muro. Além disso, foi também realizado a análise de carga da parede perimetral mais carregada. Esses têm a particularidade de que só é possível recalçá-los por meio de micro estacas de um único lado, provocando que a carga seja excêntrica, portanto, devem ser ancorados para equilibrar essa excentricidade. Essa última situação é analisada em detalhes posteriormente. Para determinar a carga transferida pelos muros, primeiramente, foi realizado a análise de carga das lajes dos entrepisos e da laje do telhado não acessível (Tabela 2). As análises de carga das paredes, interno e externo, mais carregados estão apresentadas na Tabela 3. Durante a execução, e para atravessar a parede evitando vibrações durante a cravação, foi primeiro perfurado com uma coroa diamantada um orifício de 120 mm de diâmetro, até atravessar a base de apoio. Nesse momento, a coroa foi removida e a micro estaca foi introduzido até entrar em contato com o solo subjacente, para então iniciar o processo de cravação. No caso das paredes internas do subsolo, as estacas são alternados de um lado para o outro de cada parede, com um esquema de "pata de catre", conforme indicado na Figura 11.
Figura 12. Esquema do subsolo com a proposta de localização das micro estacas.
Tabla 2. Análise de carga de lajes.
| Item | Laje Entrepiso | Laje de terraço não acessível |
| Carga [tn/m2] | Carga [tn/m2] | |
| Forjado | 0.33 | 0.33 |
| Piso | 0.19 | 0.19 |
| Teto baixo | 0.03 | 0.03 |
| Total Carga Morta | 0,55 | 0,55 |
| Sobrecarga útil | 0.20 | 0.10 |
| Carga Total | 0.75 | 0.65 |
Tabla 3. Análise de carga das paredes
| Item | Parede Interna | Parede Perimetral |
| Carga [tn/m] | Carga [tn/m] | |
| Lajes sobre SS | 3.84 | 2.22 |
| Lajes sobre PB | 3.84 | 2.22 |
| Lajes sobre PA | 3.32 | 1.76 |
| Muro | 11.00 | 11.96 |
| Carga Total | 22.00 | 17.80 |
A Figura 13 apresenta um detalhe com a separação aproximada entre micro estacas, dispostas em ambos os lados dos muros interiores, e um corte com o detalhe da localização deles em relação à fundação existente.
Figura 13. Detalhe da disposição e separação de microestacas em paredes interiores, juntamente com um corte que mostra a conexão com a alvenaria de fundação.
Uma vez atingido o horizonte de fundação, procedeu-se à injeção do bulbo e fuste com uma injeção primária de pasta de cimento H-17 vertido por gravidade, e uma injeção secundária de H-21 a uma pressão de 10 kg/cm2 (o consumo foi em torno de 40 litros para a injeção primária e 160 litros para a secundária). Antes de injetar, foram colocados obturadores hidráulicos no centro da micro estaca para impedir o retorno da pasta de cimento para a superfície.
Nas áreas específicas em que, durante a execução da cravação da microestaca de reforço, foram observados vazios ou cavidades sob o piso, foram preenchidos por meio de injeções de solo-cimento em proporções de 1:7 (ligante, solo), com consistência fluida para garantir o preenchimento correto de todos os espaços e vazios, sem que a pressão de injeção ultrapasse o valor de 2 kg/cm2.
6.3. Proposta de reforço das paredes externas
Para as paredes externas (perimetrais), o trabalho foi realizado apenas do lado interior do subsolo, e para equilibrar os momentos gerados pela linha de microestacas, foram executados tensores sub-horizontais através do muro, atuando como tirantes de ancoragem passivos para equilibrar a excentricidade na transferência de cargas para as micro estacas inclinadas. Esses elementos sub-horizontais não ultrapassam os limites da propriedade (Linha Municipal) e possuem uma capacidade de carga mínima garantida de 10 toneladas por unidade, conforme necessário pelos cálculos. Além disso, antes da execução, verificou-se a ausência de infraestrutura enterrada que pudesse ser danificada durante a execução. É importante destacar que esses tensores são pré-escavados antes da introdução da armadura.
A partir da análise de carga da parede externa e da capacidade de carga de cada micro estaca, foi elaborado o projeto de reforço, cujo detalhe é apresentado na Figura 14. A disposição inclinada das micro estacas cravadas, atravessando a sapata da parede externa apenas do interior do subsolo, gera sobre a estrutura de reforço uma força horizontal que deve ser equilibrada em parte pela resistência de atrito desenvolvida na interface solo-muro e o excedente, incorporando um tirante passivo subhorizontal disposto em direção ao perímetro do palácio. O esquema de cargas que atuam nas paredes é mostrado na Figura 15, do qual é possível determinar o valor da carga a ser equilibrada pelo tirante passivo proposto.
Figura 14. Detalhe da disposição e separação das microestacas nas paredes externas, com a localização aproximada dos tirantes passivos de equilíbrio.
Figura 15. Corte B-B, indicado na Figura 14, onde é mostrada a conexão com a alvenaria de fundação e a disposição do tirante passivo.
A magnitude da força horizontal responde à componente horizontal da tensão interna na micro estaca. A resistência de atrito na interface solo-muro equilibra parte da força, recorrendo à execução de tirantes passivos para equilibrar a força restante. A separação dos tirantes depende, além da soma das forças não equilibradas em cada micro estaca perimetral, da capacidade da parede de transferir essas forças não equilibradas para o tirante. Considerou-se que cada tirante passivo absorve até 4 microestacas, separados por 2 metros entre si.
A partir das cargas detalhadas na Figura 15, é proposta a equação de equilíbrio de forças horizontais (1), da qual se deduz o valor do esforço no tirante, por microestaca.
| (1) |
De (1) se determina que:
| (2) |
Como mencionado na Tabela 1, assumindo uma superfície de contato garantida na interface microestaca-grouting de 30 cm de desenvolvimento, a carga máxima admissível a ser transferida para cada microestaca será de 20 toneladas. Enquanto isso, o coeficiente de atrito entre a base de apoio e o solo é da ordem de 0,24. Este último valor permite determinar o valor da Atrito na interface, tomando a carga do muro menos carregado (15 toneladas), de forma conservadora. De (2):
O empuxo a ser equilibrado por ancoragem passiva é equivalente ao de 4 microestacas. Portanto, a ancoragem passiva terá que ser projetada para absorver 10 toneladas. A separação de 2,00 m proposta entre as microestacas é razoável e permite inferir que a carga transferida para cada microestaca é de aproximadamente 40 toneladas. Como cada micro estaca tem uma capacidade de carga da ordem de 20 toneladas, a carga não absorvida pelas micro estacas continuará sendo suportada pelo solo de apoio. Nesse sentido, considera-se que essa carga é baixa e compatível com a capacidade de carga do solo, sendo suficiente para interromper os assentamentos. A Figura 16 apresenta, por meio de uma sequência de fotos, o processo de cravação de uma micro estaca metálica.
Figura 16. Detalhe do procedimento de intervenção. a) Imagem da perfuração com serra diamantada. b) Fotografia dos orifícios perfurados na alvenaria até o horizonte de deslizamento pré-existente. c) Fotografia tirada durante o processo de cravação mecânica da microestaca. d) Fotografia tirada durante a cravação de uma microestaca. e) Imagem da extremidade superior do tubo Manessmann, cravado, com estribos soldados para aumentar a superfície de atrito contra a laje de subpressão a ser executada.
7. VERIFICAÇÃO DE RESULTADOS
Para garantir a capacidade de carga mínima de 20 toneladas por estaca, foi realizado um ensaio de carga em uma microestaca vertical. Para isso, foram cravados três estacas idênticos no jardim do edifício: os dois externos sustentam, por tração, o mecanismo reativo, consistindo em uma viga metálica de grande porte, sob a qual foi colocado um macaco hidráulico de 100 toneladas de capacidade, acionado por uma central hidráulica manual independente, conectada ao macaco por meio de mangueiras de alta pressão.
A viga metálica comprime, por meio do macaco hidráulico, a microestaca central a ser testado. Uma vez posicionado o quadro reativo, foram colocados os elementos de medição (flexímetros) para ler as deformações deste último, dispostos a 120º um do outro para materializar o plano de referência. Esses comparadores foram colocados com braços de 0,80 m de comprimento, solidários à cabeça da microestaca para evitar possíveis influências pela deformação do solo ao seu redor. A precisão do instrumento utilizado é de 0,01 mm.
Foram realizados ciclos de carga ascendentes (carga) e descendentes (descarga). Os ciclos ascendentes foram realizados com cargas de 5,00 toneladas cada até atingir uma carga máxima final de 45,00 toneladas, enquanto os ciclos descendentes foram executados em etapas de 10,00 toneladas até descarregar totalmente o elemento testado. Em cada ciclo, tanto de carga quanto de descarga, foram realizadas medições de deformação instantânea e diferida 30 minutos antes de aumentar a carga para o próximo degrau.
A cada 10 toneladas, o sistema é descarregado e são feitas leituras de deformação residual, que é o parâmetro a ser verificado, antes de iniciar um novo ciclo de carga. A deformação final não deve exceder 10% do diâmetro da estaca (125 mm), ou seja, a deformação residual máxima permitida não pode ser superior a 12,5 mm, para a carga de serviço solicitada de 20 toneladas.
Na Tabela 4, podem ser verificados os valores mencionados, esclarecendo que, após ultrapassar as 45 toneladas de carga, um tensor do quadro reativo foi cortado, encerrando o ensaio.
Tabela 4. Planilha de resultados de ensaio de carga.
| Leitura Manom. (kg/cm2) |
Carga aplicada (tn) |
Leitura C. 1 (N) (mm) |
Leitura C. 2 (W) (mm) |
Leitura C. 3 (S) (mm) |
Observ. Leitura méd. (mm) |
Deform. plástica (mm) |
| Primeiro ciclo de carga (acomoda marco Reativo) |
||||||
| 0,00 | 0,00 | 9,26 | 3,00 | 3,78 | Leitura inicial 4,34 | 0,00 |
| 25,00 | 5,00 | 12,18 | 2,32 | 2,45 | 5,65 | 1,31 |
| 50,00 | 10,00 | 13,85 | 2,56 | 2,45 | 6,28 | 1,94 |
| Descarga | ||||||
| 0,00 | 0,00 | 9,54 | 3,22 | 3,57 | 5,44 | 1,10 |
| Segundo ciclo de carga | ||||||
| 0,00 | 0,00 | 9,54 | 3,22 | 3,57 | Leitura inicial 5,44 | 0,00 |
| 25,00 | 5,00 | 12,48 | 2,63 | 2,56 | 5,89 | 0,45 |
| 50,00 | 10,00 | 13,40 | 2,67 | 2,37 | 6,14 | 0,70 |
| 75,00 | 15,00 | 15,55 | 4,00 | 1,89 | 7,14 | 1,70 |
| 100,00 | 20,00 | 19,40 | 6,03 | 1,67 | 9,03 | 3,59 |
| Descarga | ||||||
| 50,00 | 10,00 | 16,90 | 6,02 | 1,41 | 8,11 | 2,67 |
| 0,00 | 0,00 | 11,93 | 4,95 | 3,42 | 6,76 | 1,32 |
| Terceiro Ciclo de carga | ||||||
| 0,00 | 0,00 | 11,93 | 4,95 | 3,42 | Leitura inicial 6,76 | 0,00 |
| 50,00 | 10,00 | 16,35 | 5,32 | 1,48 | 7,71 | 0,95 |
| 100,00 | 20,00 | 19,82 | 6,40 | 1,68 | 9,30 | 2,54 |
| 125,00 | 25,00 | 24,00 | 8,00 | 2,46 | 11,48 | 4,72 |
| 150,00 | 30,00 | 26,32 | 9,60 | 3,62 | 13,18 | 6,42 |
| 175,00 | 35,00 | 30,45 | 10,85 | 5,66 | 15,65 | 8,89 |
| 200,00 | 40,00 | 31,82 | 10,60 | 7,00 | 16,47 | 9,71 |
| 225,00 | 45,00 | Corte tensor a 45 tn | ||||
| Descarga | ||||||
| 125,00 | 25,00 | 29,30 | 9,85 | 6,75 | 15,30 | 8,45 |
| 50,00 | 10,00 | 26,52 | 8,23 | 4,14 | 13,83 | 7,07 |
| 0,00 | 0,00 | 19,30 | 8,10 | 3,95 | 10,45 | 3,69 |
Nas Figuras 17, 18 e 19, são apresentados os gráficos de Carga-Deformação para cada ciclo.
Figura 17. Gráfico carga-deformação do 1o ciclo de carga (10 tn).
Figura 18. Gráfico carga-deformação do 2º ciclo de carga (25 tn).
Figura 19. Gráfico carga-deformação do 3o ciclo de carga (45 tn).
As Figuras 17 e 18 apresentam um comportamento quase linear do solo solicitado pela microestaca, tanto na carga como na descarga, observando-se que, devido ao nível de deformações alcançado, ocorre uma modificação da microestrutura cimentada do limo, provocando deformações plásticas (permanentes) mas compatíveis com o limite estabelecido para os valores residuais de assentamentos. A Figura 19 mostra um claro comportamento bilinear, típico dos limos cimentados, no qual a partir da carga aplicada de 30 tn há uma mudança na inclinação da curva carga-assentamento (Capdevila, 2008). Após a ruptura do tensor, procede-se à descarga, atingindo um assentamento residual inferior ao valor limite.
8. CONCLUSÕES
As micro estacas fincadas constituem uma alternativa aos tradicionais pilares de concreto moldados no local, especialmente indicados quando é necessário reforçar fundações em edificações existentes e de valor patrimonial, onde é desejável minimizar a quebra de pisos ou paredes, assim como evitar (ou pelo menos reduzir) o volume de escavações e o posterior transporte de terra até um contêiner, devido ao custo adicional e ao risco de danos que essa operação implica por choques ou atritos da carrinho contra paredes, esquadrias, etc.
Sua capacidade de carga depende do diâmetro do tubo utilizado e do tipo e pressão de injeção, havendo a possibilidade de executar injeções repetitivas seletivas (IRS) variáveis em cada profundidade, quando atravessam estratos heterogêneos, nesse caso, colocam-se obturadores que limitam a injeção apenas ao estrato pré-fixado. Dessa forma, altas capacidades de carga podem ser alcançadas, evitando também a execução de elementos de transferência, como vigas baldrame.
No caso exposto, para uma carga (45 tn) que excede em 3 vezes a carga de serviço (13 tn), a deformação do elemento foi de cerca de 30% do máximo permitido pela regulamentação.
Finalmente, como a massa da máquina perfuradora possui o mesmo peso e altura de queda solicitados pela normativa para a execução de ensaios SPT, a cravação de cada micro estaca permite verificar ponto a ponto eventuais variações ou heterogeneidades no perfil litológico previsto.
9. REFERÊNCIAS
Capdevila, J. A. (2008). “Comportamiento Tensión-Deformación del Loess del Centro de Argentina en Campo y Laboratorio: Influencia de los Parámetros Estructurales”. 1º Ed. 2009. Tesis Doctoral. Universidad Nacional de Córdoba. ISBN: 978-987-05-6839-1
Cisneros, J. M., Gil, H. A., de Prada, J. D., Degioanni, A. J., Cantero, G. A., Giayetto, O., Ioele, J., Madoery, O. A., Masino, A., Rosa, J. (2014). “Estado actual, pronósticos y propuestas de control de inundaciones en el centro-este de la provincia de Córdoba”. Servicio de Conservación y Ordenamiento de Tierras (SECYOT). Facultad de Agronomía y Veterinaria. Universidad Nacional de Río Cuarto. Recuperado de URL: http://www.todoagro.com.ar/documentos/2014/Informe_Inundacion_SeCyOT_2014.pdf.
Francisca, F. M. (2007). “Evaluating the constrained modulus and collapsibility of loess from standard penetration test”. ASCE International Journal of Geomechanics. 7(4):7-10. ISSN 1532-3641. https://doi.org/10.1061/(ASCE)1532-3641(2007)7:4(307)
Gómez, M. L., Blarasin, M., Cabrera, A., y Matteoda, E. (2006). “Variaciones de nivel freático y contaminación del acuífero en la zona de Coronel Moldes, Córdoba”. 1º Congreso Internacional sobre Gestión y Tratamiento Integral del Agua. Córdoba, Argentina.
Videla Mensegue, H. R., Degioanni, A. J., y Cisneros, J. M. (2015). “Estimating shallow water table contribution to soybean water use in Argentina”. European Scientific Journal. 11(14): 23-40. ISSN: 1857-7881 (Print), e - ISSN 1857- 7431.